Απόφαση 65572/11

Απόφαση 65572/26680/2011: Τροποποίηση του εγκεκριμένου ρυμοτομικού σχεδίου πόλης Ηρακλείου στο οικοδομικό τετράγωνο 495 (Γ1884) της Πολεοδομικής Ενότητας Άγιος Ιωάννης - Μεσαμπελιές - Φορτέτσα


Συνδεθείτε στην Υπηρεσία Νομοσκόπιο
Είσοδος στην υπηρεσία Νομοσκόπιο.
   
Χρήστης
Κωδικός
  Υπενθύμιση στοιχείων λογαριασμού
   
 
Νέοι χρήστες
Εάν είστε νέος χρήστης, θα πρέπει να δημιουργήσετε ένα ΔΩΡΕΑΝ λογαριασμό προκειμένου να φύγει το παράθυρο αυτό και να αποκτήσετε πλήρη πρόσβαση στην υπηρεσία Νομοσκόπιο.
Δημιουργία νέου λογαριασμού

 

 

Απόφαση 65572/26680/2011: Τροποποίηση του εγκεκριμένου ρυμοτομικού σχεδίου πόλης Ηρακλείου στο οικοδομικό τετράγωνο 495 (Γ1884) της Πολεοδομικής Ενότητας Άγιος Ιωάννης - Μεσαμπελιές - Φορτέτσα, (ΦΕΚ 34/ΑΑΠ/2012), 13-02-2012.

 

Ο Περιφερειάρχης Κρήτης

 

Έχοντας υπόψη:

 

1. Τα άρθρα 94, 164, 186 παράγραφος Στ στοιχείο 39 και 283 του νόμου 3852/2010 (ΦΕΚ 87/Α/2010) Νέα Αρχιτεκτονική της Αυτοδιοίκησης και Αποκεντρωμένης Διοίκησης - Πρόγραμμα Καλλικράτης όπως τροποποιήθηκε και συμπληρώθηκε με το νόμο 3889/2010 και το νόμο 3905/2010.

 

2. Το νόμο 3861/2010 (ΦΕΚ 112/Α/2010) ενίσχυση της διαφάνειας με την υποχρεωτική ανάρτηση νόμων και πράξεων των κυβερνητικών, διοικητικών και Αυτοδιοικητικών Οργάνων στο διαδίκτυο Πρόγραμμα Διαύγεια και άλλων διατάξεων.

 

3. Το προεδρικό διάταγμα 149/2010 (ΦΕΚ 242/Α/2010) Οργανισμό της Περιφέρειας Κρήτης.

 

4. Τις διατάξεις του από 17-07-1923 νομοθετικού διατάγματος Περί σχεδίων πόλεων κ.λ.π. (ΦΕΚ 228/Α/1923).

 

5. Το νόμο 1337/1983 (ΦΕΚ 33/Α/1983), όπως τροποποιήθηκε και ισχύει σήμερα.

 

6. Τις διατάξεις του ισχύοντος Γενικού Οικοδομικού Κανονισμού.

 

7. Το άρθρο 10 άσκηση αρμοδιοτήτων πολεοδομικού Σχεδιασμού του νόμου 3044/2002 (ΦΕΚ 197/Α/2002).

 

8. Το με αριθμό 127322/08-08-2011 έγγραφο του Δήμου Ηρακλείου, με το οποίο μας διαβιβάζει τα απαιτούμενα για την τροποποίηση δικαιολογητικά.

 

9. Το από 06-04-1989 προεδρικό διάταγμα (ΦΕΚ 204/Δ/1989) με το οποίο εντάχθηκε στο σχέδιο Άγιος Ιωάννης - Μεσαμπελιές - Φορτέτσα.

 

10. Τη με αριθμό 61981/02-07-2009 αίτηση του Αποστολάκη Γεωργίου, με την οποία ζητά την τροποποίηση.

 

11. Τη με αριθμό 155/2010 απόφαση του Δημοτικού Συμβουλίου Δήμου Ηρακλείου, με την οποία γνωμοδοτεί θετικά για την προτεινόμενη τροποποίηση.

 

12. Το με αριθμό 53973/04-05-2011 έγγραφο της Διεύθυνσης Πολεοδομικών Λειτουργιών Δήμου Ηρακλείου μετά από το οποίο έγινε δημοσίευση της ανακοίνωσης για την ανάρτηση του σχεδίου της τροποποίησης σύμφωνα με την 155/2010 Απόφαση Δημοτικού Συμβουλίου στις 23-05-2011 (για 15 ημέρες).

 

13. Το με αριθμό 70382/23-05-2011 πρωτόκολλο ανάρτησης.

 

14. Η με αριθμό 82118/06-06-2011 ένσταση της Μαρίας Ροδιτάκη και τη με αριθμό 110863/14-07-2011 με την οποία παραιτείται της παραπάνω ένστασης.

 

15. Τα αποκόμματα των εφημερίδων Μεσόγειος της 18 και 19-05-2011 και Πατρίς της 18 και 19-05-2011.

 

16. Τα αποδεικτικά επίδοσης στους εμπλεκόμενους ιδιοκτήτες.

 

17. Τα Συμβόλαια.

 

18. Τις αποδείξεις αμοιβών και φορολογικών του μηχανικού.

 

19. Το με αριθμό 141230/02-09-2011 έγγραφο της Διεύθυνσης Πολεοδομικών Λειτουργιών Βεβαίωση για την Αρτιότητα των οικοπέδων.

 

20. Το με ημερομηνία 05-05-2011 τοπογραφικό διάγραμμα του Αρχιτέκτονα μηχανικού Καλησπεράκη Μιχαήλ σε κλίμακα 1:200 και τη με ημερομηνία 05/2011 τεχνική έκθεση του.

 

21. Τη με ημερομηνία 09-2011 θετική εισήγηση της Διεύθυνσης Περιβάλλοντος & Χωρικού Σχεδιασμού.

 

22. Το με αριθμό 88144/36286/12-10-2011 έγγραφο της Διεύθυνσης Περιβάλλοντος & Χωρικού Σχεδιασμού με το οποίο αποστέλλει την εισήγηση της τροποποίησης στο Συμβούλιο Χωροταξίας, Οικισμού και Περιβάλλοντος.

 

23. Τα πρακτικά του 5ου Νομαρχιακού Συμβουλίου Χωροταξίας, Οικισμού και Περιβάλλοντος της Συνεδρίασης της 17-11-2011, με θετική γνωμοδότηση.

 

24. Το γεγονός ότι από τις διατάξεις της απόφασης δεν προκαλείται δαπάνη σε βάρος του Κρατικού Προϋπολογισμού ούτε του προϋπολογισμού του οικείου οργανισμού τοπικής αυτοδιοίκησης, επειδή:

 

1. Με την τροποποίηση διατηρείται ο υφιστάμενος από παλιά δρόμος, στον οποίο υπάρχουν οικοδομές με πρόσωπο σ' αυτόν (είσοδο).

 

2. Δεν επέρχεται μείωση των Κοινόχρηστων Χώρων της πολεοδομικής ενότητας.

 

3. Δεν θίγονται όμορες ιδιοκτησίες.

 

4. Κατά την τελευταία ανάρτηση δεν υποβλήθηκαν ενστάσεις.

 

5. Κανένα άρτιο οικόπεδο δεν καθίσταται μη άρτιο, όπως προκύπτει από το (19) σχετικό έγγραφο.

 

6. Η προτεινόμενη τροποποίηση αποσκοπεί σε κοινή ανάγκη και βελτιώνει τις πολεοδομικές συνθήκες της περιοχής, αποφασίζουμε:

 

Την τροποποίηση του εγκεκριμένου ρυμοτομικού σχεδίου στη Πολεοδομική Ενότητα Άγιος Ιωάννης - Μεσαμπελιές - Φορτέτσα στο οικοδομικό τετράγωνο 495 (Γ1884) και ειδικότερα την αναδιάταξη των Κοινοχρήστων χώρων:

 

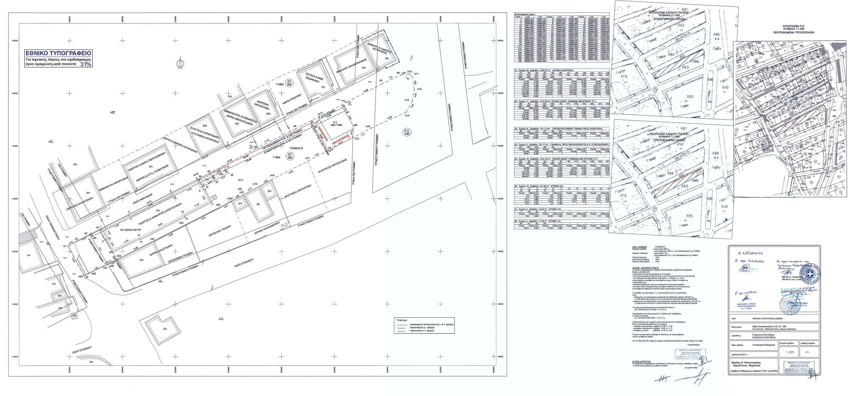
1. Με την μετατόπιση της οικοδομικής γραμμής στη βόρεια πλευρά του οικοδομικού τετραγώνου 495 (Γ1884) της Περιφερειακής Ενότητας Άγιος Ιωάννης - Μεσαμπελιές - Φορτέτσα ώστε να αποφευχθεί η ρυμοτόμηση του κτιρίου για το οποίο έχει εκδοθεί η με αριθμό 481/1978 Οικοδομική άδεια.

 

2. Με τη δημιουργία ενός Κοινοχρήστου Χώρου Πρασίνου (ΚΧ 495 Γ1884) και πεζόδρομο πλάτους 3,00 m σύμφωνα με το συνημμένο σχέδιο.

 

a.65572.11

 

Η ισχύς της απόφασης αυτής αρχίζει από τη δημοσίευσή της στην Εφημερίδα της Κυβερνήσεως.

 

Κατά της παρούσης επιτρέπονται προσφυγές στο Γενικό Γραμματέα της Αποκεντρωμένης Διοίκησης Κρήτης, εντός 15 ημερών από την κοινοποίηση της στους ενδιαφερομένους ή την ανάρτηση της στο διαδίκτυο, για παράβαση Νόμων και μόνο, σύμφωνα με τις διατάξεις του άρθρου 227 του νόμου 3852/2010 (ΦΕΚ 87/Α/2010).

 

Η απόφαση αυτή να δημοσιευθεί στην Εφημερίδα της Κυβερνήσεως.

 

Ηράκλειο, 08-12-2011

 

Ο Περιφερειάρχης

 



Copyright © 2017 TechnoLogismiki. Με την επιφύλαξη παντός δικαιώματος.