Νόμος 3207/03 - Άρθρο 7

Άρθρο 7: Ρύθμιση θεμάτων Ολυμπιακών έργων και εγκαταστάσεων και έργων υποδομής για τις ανάγκες των Ολυμπιακών Αγώνων και άλλες διατάξεις


Συνδεθείτε στην Υπηρεσία Νομοσκόπιο
Είσοδος στην υπηρεσία Νομοσκόπιο.
   
Χρήστης
Κωδικός
  Υπενθύμιση στοιχείων λογαριασμού
   
 
Νέοι χρήστες
Εάν είστε νέος χρήστης, θα πρέπει να δημιουργήσετε ένα ΔΩΡΕΑΝ λογαριασμό προκειμένου να φύγει το παράθυρο αυτό και να αποκτήσετε πλήρη πρόσβαση στην υπηρεσία Νομοσκόπιο.
Δημιουργία νέου λογαριασμού

 

 

1. α. Για την τοποθέτηση προσωρινών λυόμενων κερκίδων σε Ολυμπιακές εγκαταστάσεις αθλητικές ή μη επιβάλλεται η σύνταξη μελέτης πυροπροστασίας από Διπλωματούχους ή Τεχνολόγους Μηχανικούς. Οι Πυροσβεστικές Υπηρεσίες μπορούν να ελέγχουν αν ο υπογράφων τη μελέτη Μηχανικός έχει αυτό το δικαίωμα και εγκρίνουν τη σχετική μελέτη.

 

β. Ως προσωρινές λυόμενες κερκίδες σε στεγασμένους ή υπαίθριους χώρους νοούνται οι μεταλλικές κατασκευές που είναι διαμορφωμένες σε διαδοχικούς αναβαθμούς του δαπέδου τους και οι οποίες παρέχουν προσωρινά καθίσματα για θεατές και άλλους χρήστες κατά τη διάρκεια των Ολυμπιακών και Παραολυμπιακών Αγώνων του 2004.

 

γ. Η παθητική πυροπροστασία των λυόμενων κερκίδων επιβάλλει:

 

α)α) Ελάχιστο πλάτος αναβαθμού 0,75 m

 

β)β) Σε αναβαθμούς με σταθερά καθίσματα τοποθετημένα επάνω τους, η ελεύθερη απόσταση (οριζόντια απόσταση) μεταξύ των καθισμάτων διαδοχικών σειρών μετρούμενη σε μη αναδιπλωμένα καθίσματα πρέπει να είναι 0,35 m και άνω.

 

γ)γ) Οι σειρές καθισμάτων που περικλείονται από δύο διαμήκεις διαδρόμους δεν πρέπει να περιλαμβάνουν περισσότερα από 28 καθίσματα ή θέσεις. Όταν έχουν πρόσβαση μόνο προς έναν διαμήκη διάδρομο, το όριο είναι 14 καθίσματα ή θέσεις. Το μέγιστο επιτρεπόμενο μήκος διαδρομής προς μία έξοδο κινδύνου δεν πρέπει να ξεπερνά τα 45 m.

 

δ. Κατά τα λοιπά ισχύουν αναλόγως οι διατάξεις του προεδρικού διατάγματος 71/1988 Κανονισμός Πυροπροστασίας Κτιρίων, ως προς τα μέσα και μέτρα παθητικής και ενεργητικής πυροπροστασίας των προσωρινών λυόμενων κερκίδων.

 

n.3207.03.14

 

2. α. Στην εκτός εγκεκριμένων σχεδίων πόλεων και εκτός ορίων οικισμών κάτω των 2.000 κατοίκων και οικισμών προ του 1923 περιοχή του Δήμου Κορυδαλλού του Νομού Αττικής και συγκεκριμένα στην έκταση συνολικής επιφάνειας 115.304,75 m2, όπως αυτή απεικονίζεται με στοιχεία 1, 2, 3, 4, 5, 6, 7, 8, 9, 10, 11, 12, 13, 14, 15, 16, 17, 18, 1 στο τοπογραφικό διάγραμμα υπό κλίμακα 1:1.000, που θεωρήθηκε από τον Προϊστάμενο της Διεύθυνσης Μελετών Αθλητικών Έργων της Γενικής Γραμματείας Αθλητισμού και του οποίου αντίτυπο σε φωτοσμίκρυνση δημοσιεύεται με το νόμο αυτόν στην Εφημερίδα της Κυβερνήσεως, καθορίζεται χώρος ανέγερσης συμπληρωματικών αθλητικών εγκαταστάσεων και κτιριακών υποδομών κοινής ωφέλειας για τις ανάγκες των Ολυμπιακών Αγώνων του 2004.

 

n.3207.03.13

 

β. Εγκρίνεται η γενική διάταξη και το περίγραμμα των αθλητικών εγκαταστάσεων και των κτιριακών υποδομών κοινής ωφέλειας, όπως αυτές φαίνονται στο παραπάνω συν-δημοσιευόμενο με τον παρόντα νόμο τοπογραφικό διάγραμμα.

 

γ.i. Οι όροι και περιορισμοί δόμησης για την ανέγερση των συμπληρωματικών αθλητικών εγκαταστάσεων στην έκταση αυτή, με εξαίρεση το χώρο που περιγράφεται στην επόμενη υποπερίπτωση ii της παρούσας, καθορίζονται ως εξής:

 

Συντελεστής δόμησης: 0,15
Ποσοστό κάλυψης: 15%
Μέγιστο επιτρεπόμενο ύψος: 20 m
Μέγιστο επιτρεπόμενο ύψος για πυλώνες φωτισμού: 45 m

 

ii. Οι όροι και περιορισμοί δόμησης για την ανέγερση των κτιριακών υποδομών κοινής ωφέλειας καθορίζονται ειδικά για το χώρο με περίγραμμα Α, Β, Γ, Δ, Ε, Ζ, Α, όπως φαίνεται στο συν-δημοσιευόμενο με τον παρόντα νόμο παραπάνω τοπογραφικό διάγραμμα, ως εξής:

 

Συντελεστής δόμησης: 0,8
Ποσοστό κάλυψης: 40%
Ύψος ανωδομής: 20 m
Όγκος ανωδομής: 16.000 m3
Ύψος υπογείου: 5,5 m
Απολήξεις κλιμακοστασίων αερισμών: 22,40 m

 

δ. Στο στοιχείο 9 της παραγράφου 1 του άρθρου 3 του νόμου 2947/2001 (ΦΕΚ 228/Α/2001) η λέξη Νίκαιας αντικαθίσταται από τη λέξη Κορυδαλλού.

 

3. Τροποποιείται και επεκτείνεται το ισχύον ρυμοτομικό σχέδιο του Χώρου Αθλητικών Εγκαταστάσεων Μίκρας του Δήμου Καλαμαριάς, καθορίζονται οι οικοδομήσιμοι χώροι, όπως απεικονίζεται στο από 26-02-2003 διάγραμμα κλίμακας 1:1.000, που θεωρήθηκε από τον Πρόεδρο του Οργανισμού Ρυθμιστικού Σχεδίου Θεσσαλονίκης και του οποίου αντίτυπο σε φωτοσμίκρυνση δημοσιεύεται με τον παρόντα νόμο στην Εφημερίδα της Κυβερνήσεως και καθορίζονται ανά νέο Οικοδομικό Τετράγωνο οι εξής όροι δόμησης:

 

Οικοδομικό Τετράγωνο 1: Χρήση γης: Αθλητικές εγκαταστάσεις και χώρος μνημείου πεσόντων

 

Οικοδομικό Τετράγωνο 2: Χρήση γης: Αθλητικές εγκαταστάσεις

 

Μέγιστος συντελεστής δόμησης: 0,3

Μέγιστη κάλυψη: 30%

 

Απόσταση κτιρίων από τη ρυμοτομική γραμμή: 10 m.

Για τα υφιστάμενα κτίρια ή τα προς νομιμοποίηση, επιτρεπόμενη απόσταση από τα όρια: 2 m

 

Το εδάφιο Μέγιστος συντελεστής δόμησης: 0,2 αντικαθίσταται ως εξής: Μέγιστος συντελεστής δόμησης 0,3.

 

Ανώτατο ύψος: 15 m, μετρούμενο από το επίπεδο του αγωνιστικού χώρου και επιπλέον 4,5 m από την παραπάνω τελική στάθμη για την κατασκευή στεγάστρου γηπέδου.

 

Μέγιστος συντελεστής κατ' όγκο εκμετάλλευσης: 3.

 

Μέγιστο ύψος για τους πυλώνες φωτισμού του αθλητικού χώρου: αυτό που θα προκύπτει από τη σχετική μελέτη φωτισμού σύμφωνα με τις διεθνείς προδιαγραφές για τα γήπεδα ποδοσφαίρου. Ομοίως και για το μέγιστο ύψος των πινάκων αποτελεσμάτων σύμφωνα με τις διεθνείς προδιαγραφές για τα γήπεδα ποδοσφαίρου.

 

Εντός του Οικοδομικού Τετραγώνου 2 επιτρέπεται, εκτός από τις κυρίως αθλητικές εγκαταστάσεις, η χωροθέτηση των ακολούθως συμπληρωματικών λειτουργιών: χώρων ιατρικής υποστήριξης και αποκατάστασης αθλητών, αιθουσών πολλαπλών χρήσεων πολιτισμού και αναψυχής, συνεδριακού χώρου, χώρων εστίασης, εμπορικών χρήσεων, πολυλειτουργικών κέντρων άθλησης και σωματικής υγιεινής, αιθουσών εξυπηρέτησης τύπου και μέσων μαζικής ενημέρωσης, γραφείων, ξενώνων και γενικά χώρων φιλοξενίας. Ο ανώτατος συντελεστής δόμησης των ανωτέρω χρήσεων δεν επιτρέπεται να υπερβαίνει το 35% του ανώτατου συντελεστή δόμησης που καθορίζεται ανωτέρω.

 

Οικοδομικό Τετράγωνο 3: Χρήση γης: Αθλητικές εγκαταστάσεις

Μέγιστος συντελεστής δόμησης: 0,25

Μέγιστη κάλυψη: 30%

Ανώτατο ύψος: 15,5 m

Μέγιστος συντελεστής κατ' όγκον εκμετάλλευσης: 2

Μέγιστο επιτρεπόμενο ύψος για τους πυλώνες φωτισμού των αθλητικών χώρων: 45 m

 

Οικοδομικό Τετράγωνο 4: Χρήση γης: Αθλητικές εγκαταστάσεις, χώρος βιολογικού καθαρισμού και χώρος στάθμευσης.

 

Οικοδομικό Τετράγωνο 5: Χρήση γης: Πράσινο και υπαίθριες αθλητικές εγκαταστάσεις.

Μέγιστη κάλυψη: 4%

Μέγιστος συντελεστής δόμησης: 0,04

Ανώτατο ύψος: 3,0 μέτρα και 1,5 m επιπλέον για τη στέγη

Υποχρεωτική απόσταση κτισμάτων από τη ρυμοτομική γραμμή: 10 m

 

Οικοδομικό Τετράγωνο 6: Χρήση γης: Πράσινο και υπαίθριες αθλητικές εγκαταστάσεις

Μέγιστη κάλυψη: 6%

Μέγιστος συντελεστής δόμησης: 0,06

Ανώτατο επιτρεπόμενο ύψος εγκαταστάσεων: 6 μέτρα και 1,5 m επιπλέον για τη στέγη

Υποχρεωτική απόσταση των κτιρίων από τη ρυμοτομική γραμμή: 20 m

 

Οικοδομικό Τετράγωνο 7: Χρήση γης: Αθλητικές εγκαταστάσεις

Μέγιστη κάλυψη: 25%

Μέγιστος συντελεστής δόμησης: 0,25

Ανώτατο ύψος: 3,0 m και 1,5 m επιπλέον για τη στέγη

Υποχρεωτική απόσταση από τη ρυμοτομική γραμμή: 2 m

 

Όλες οι μελέτες των προβλεπόμενων εγκαταστάσεων εγκρίνονται από την αντίστοιχη Υπηρεσία της Γενικής Γραμματείας Αθλητισμού και την αρμόδια Επιτροπή Πολεοδομικού και Αρχιτεκτονικού Ελέγχου Κάθε εγκατάσταση θα πρέπει να εξασφαλίζει τους απαραίτητους χώρους στάθμευσης εντός του ίδιου οικοδομικού τετραγώνου, σύμφωνα με την υπ' αριθμόν ΓΝ/2859/1997 απόφαση του Νομάρχη Θεσσαλονίκης, όπως αυτή τροποποιήθηκε με τη ΓΝ/1106/1998 όμοια απόφαση.

 

Οι οικοδομικές άδειες για τις παραπάνω εγκαταστάσεις χορηγούνται από τη Διεύθυνση Οικοδομικών και Κτιριοδομικών Κανονισμών του Υπουργείου Περιβάλλοντος, Χωροταξίας και Δημόσιων Έργων, σύμφωνα με τα οριζόμενα στο γ' εδάφιο της παραγράφου 3 του άρθρου 6 του νόμου 2947/2001.

 

3. α. Στο οικοδομικό τετράγωνο 3 (Οικοδομικό Τετράγωνο 3) και εντός του χώρου αθλητικών εγκαταστάσεων του Εθνικού Γυμναστηρίου Μίκρας, όπως αυτός έχει διαμορφωθεί ή θα διαμορφωθεί μελλοντικά, επιτρέπεται η ανέγερση κτηρίου εργομετρικού κέντρου για αθλητικούς σκοπούς με τους ισχύοντες για το Οικοδομικό Τετράγωνο 3 όρους δόμησης κατά τα οριζόμενα στην παράγραφο 3 του άρθρου αυτού.

 

Ο οικοδομήσιμος χώρος για το εν λόγω κτήριο απεικονίζεται στο από 10-02-2009 διάγραμμα κλίμακας 1:1.000 που συντάχθηκε και θεωρήθηκε από τη Διεύθυνση Μελετών της Γενικής Γραμματείας Αθλητισμού και του οποίου αντίτυπο σε φωτοσμίκρυνση δημοσιεύεται με τον παρόντα νόμο στην Εφημερίδα της Κυβερνήσεως.

n.3773.09

 

ΣΗΜΕΙΩΣΗ: Η παράγραφος 3 τίθεται όπως τροποποιήθηκε με την παράγραφο Β' του άρθρου 45 του νόμου 3773/2009 (ΦΕΚ 120/Α/2009).

 

4. α. Τροποποιείται το εγκεκριμένο ρυμοτομικό σχέδιο του Δήμου Πειραιά στο οικοδομικό τετράγωνο 172, μεταξύ των οδών Θ. Ρετσίνα, Υμηττού και Αγίου Φιλίππου και ο χώρος που προβλέπεται για την ανέγερση Τεχνικής Σχολής και δημιουργία υπαίθριου σταθμού αυτοκινήτων, με την ενσωμάτωση των σιδηροδρομικών γραμμών στο ίδιο οικοδομικό τετράγωνο, καθορίζεται ως χώρος για την ανέγερση Πανεπιστημιούπολης του Πανεπιστημίου Πειραιώς. Εντός του νέου οικοδομικού τετραγώνου που φαίνεται με πράσινη γραμμή και με στοιχεία Α, Β, Γ, Δ, Ι', Θ', Η', Ζ', Ε', Δ', Γ, Β', Α', Ν, Ξ, Ο, Α, που ενσωματώνει τις σιδηροδρομικές γραμμές, δημιουργείται δουλεία διόδου της διέλευσης των σιδηροδρομικών γραμμών στο χώρο που αναφέρεται με στοιχεία Α1 έως και Α78, εκατέρωθεν και πάνω από την οποία μπορούν να ανεγερθούν οι εγκαταστάσεις του Πανεπιστημίου Πειραιώς. Οι παραπάνω ρυθμίσεις φαίνονται σε διάγραμμα κλίμακας 1:500, που θεωρήθηκε από τον Προϊστάμενο της Διεύθυνσης Τοπογραφικών Εφαρμογών του Υπουργείου Περιβάλλοντος, Χωροταξίας και Δημόσιων Έργων, συνοδεύει την παρούσα ρύθμιση και δημοσιεύεται σε φωτοσμίκρυνση στην Εφημερίδα της Κυβερνήσεως.

 

n.3207.03.16

 

β. Οι όροι δόμησης στο οικοδομικό τετράγωνο που αναφέρεται στην προηγούμενη περίπτωση καθορίζονται ως ακολούθως:

 

Συντελεστής δόμησης: 2,80

Κάλυψη του οικοπέδου: 50% και

Μέγιστο ύψος σύμφωνα με τις διατάξεις του άρθρου 7 παράγραφος 5 του νόμου 2831/2000 (ΦΕΚ 140/Α/2000).

 

γ. Επιτρέπεται για λόγους δημόσιας ωφέλειας η κήρυξη αναγκαστικής απαλλοτρίωσης για τις ανάγκες της Πανεπιστημιούπολης του Πανεπιστημίου Πειραιά.

 

δ. Μισθώσεις ακινήτων εντός του οικοδομικού τετραγώνου 172 λύονται αυτοδικαίως από την ημερομηνία δημοσίευσης του παρόντος νόμου στην Εφημερίδα της Κυβερνήσεως. Εντός προθεσμίας τριών μηνών από την επίδοση εξώδικης πρόσκλησης από τον εκμισθωτή, ο μισθωτής υποχρεούται να παραδώσει ελεύθερο το μίσθιο, έναντι καταβολής εκ μέρους του εκμισθωτή αποζημίωσης ίσης με δεκαέξι (16) μηνιαία μισθώματα. Το ποσό της αποζημίωσης συμψηφίζεται με τις αξιώσεις του εκμισθωτή από τη σύμβαση μίσθωσης, καθώς και με την αποζημίωση που οφείλει ο μισθωτής για τη χρήση του μισθίου από τη δημοσίευση του παρόντος νόμου στην Εφημερίδα της Κυβερνήσεως μέχρι την παράδοση του μισθίου.

 

5. α. Το διάγραμμα 1:500 που συνοδεύει το άρθρο 46 του νόμου 3130/2003 (ΦΕΚ 76/Α/2003), με το οποίο τροποποιήθηκε το άρθρο 8 του νόμου 2947/2001, αντικαθίσταται με νέο διάγραμμα όμοιας κλίμακας που έχει θεωρηθεί από τον Προϊστάμενο της Διεύθυνσης Τοπογραφικών Εφαρμογών του Υπουργείου Περιβάλλοντος, Χωροταξίας και Δημόσιων Έργων και του οποίου αντίτυπο σε φωτοσμίκρυνση δημοσιεύεται με τον παρόντα νόμο στην Εφημερίδα της Κυβερνήσεως. Στην έκταση με στοιχεία α', β', γ', δ', ε', στ', ζ', η', θ', Ι, α', όπως φαίνεται στο παραπάνω διάγραμμα, καθορίζεται χώρος για την επιβίβαση και αποβίβαση επιβατών του σταθμού της εταιρείας Ηλεκτρικοί Σιδηρόδρομοι Αθηνών Πειραιώς Ανώνυμη Εταιρεία καθώς και για την ελεύθερη διέλευση του κοινού, με τη δημιουργία των απαραίτητων εγκαταστάσεων του σταθμού και δημιουργείται για το σκοπό αυτόν δουλεία διόδου υπέρ της εταιρείας Ηλεκτρικοί Σιδηρόδρομοι Αθηνών Πειραιώς Ανώνυμη Εταιρεία.

 

n.3207.03.17

β. Στο τέλος του πρώτου εδαφίου της παραγράφου 3 του άρθρου 8 του νόμου 2947/2001, όπως τροποποιήθηκε με την περίπτωση β' της παραγράφου 1 του άρθρου 46 του νόμου 3130/2003, μετά τις λέξεις γραφείων, εστιατορίων προστίθενται οι λέξεις αναψυκτηρίων και μικτών καταστημάτων τροφίμων.

 

γ. Στο τέλος της παραγράφου 3 του άρθρου 8 του νόμου 2947/2001, όπως ισχύει, προστίθεται νέο εδάφιο ως εξής:

 

{Το ωράριο λειτουργίας των συμπληρωματικών εγκαταστάσεων και χρήσεων που προβλέπονται στον παρόντα νόμο καθορίζεται ελεύθερα χωρίς χρονικούς περιορισμούς και σε κάθε περίπτωση ακολουθεί τις ώρες λειτουργίας των αθλητικών εγκαταστάσεων.}

 

6. Η παράγραφος 1 του άρθρου 39 του προεδρικού διατάγματος [ΠΔ] 715/1979 (ΦΕΚ 212/Α/1979) αντικαθίσταται ως εξής:

 

{1. Η εκμίσθωση ακινήτου Νομικού Προσώπου Δημοσίου Δικαίου προς το Δημόσιον ή έτερον Νομικού Προσώπου Δημοσίου Δικαίου ή οργανισμό τοπικής αυτοδιοίκησης ή προς νομικά πρόσωπα της παραγράφου 5 του άρθρου 59, δύναται να γίνεται άνευ διαγωνισμού, εφ' όσον δι' αιτιολογημένης αποφάσεως του διοικούντος το Νομικό Πρόσωπο Δημοσίου Δικαίου συλλογικού οργάνου, αυτή κρίνεται συμφέρουσα, επιφυλασσομένης της ισχύος της παραγράφου 3 του άρθρου 38 του παρόντος. Η επιφύλαξη του προηγουμένου εδαφίου δεν ισχύει, ως προς τον υπ' αυτής προβλεπόμενο διαγωνισμό, για ακίνητα που έχουν χαρακτηρισθεί διατηρητέα, δεν έχουν τύχει εκμεταλλεύσεως κατά την τελευταία διετία, η δε εκμίσθωσή τους συνδυάζεται με, δαπάναις του μισθωτή, αναπαλαίωση και ανάδειξη του παραδοσιακού χαρακτήρα τους.}

 

7.α. Η παράγραφος 2 του άρθρου 16 του νόμου 3016/2002 (ΦΕΚ 110/Α/2002) αντικαθίσταται ως εξής:

 

{2. Η Εταιρεία δεν ανήκει στο Δημόσιο και τον ευρύτερο δημόσιο τομέα, όπως αυτός προσδιορίζεται στο νόμο 2190/1994 (ΦΕΚ 28/Α/1994), λειτουργεί κατά τις διατάξεις του ιδιωτικού δικαίου και διέπεται από τις διατάξεις του παρόντος νόμου και των κατ' εξουσιοδότηση αυτού διοικητικών πράξεων και, για όσα θέματα δεν ρυθμίζονται από τα παραπάνω, από τη νομοθεσία περί ανωνύμων εταιρειών, όπως κάθε φορά ισχύει Διατάξεις νόμων που αναφέρονται σε επιχειρήσεις, οργανισμούς ή φορείς γενικά του ευρύτερου δημόσιου τομέα δεν αφορούν την Εταιρεία εκτός αν ορίζεται ρητά ότι εφαρμόζονται και σε αυτήν. Η Εταιρεία υπάγεται στην εποπτεία των Υπουργών Οικονομίας και Οικονομικών και Πολιτισμού.}

 

β. Στο τέλος της παραγράφου 1 του άρθρου 17 του νόμου 3016/2002, όπως έχει τροποποιηθεί με την παράγραφο 1 του άρθρου 41 του νόμου 3130/2003 (ΦΕΚ 76/Α/2003), προστίθενται νέα εδάφια ως εξής:

 

{Η Εταιρεία δύναται πριν, κατά τη διάρκεια και έως το πέρας των Ολυμπιακών Αγώνων να συνάπτει συμβάσεις που αφορούν τη λειτουργία των περιουσιακών στοιχείων που της έχουν ανατεθεί ή θα της ανατεθούν κατά τις κείμενες διατάξεις του παρόντος νόμου. Η Εταιρεία μπορεί επίσης να εκπονεί οικονομοτεχνικές, λειτουργικές, διαχειριστικές και οποιεσδήποτε άλλες μελέτες που αφορούν και άλλα Ολυμπιακά ή μη έργα ή περιουσιακά στοιχεία.}

 

γ. Μετά την παράγραφο 5 του άρθρου 17 του νόμου 3016/2002, όπως τροποποιήθηκε με την παράγραφο 5 του άρθρου 41 του νόμου 3130/2003, προστίθεται νέα παράγραφος 6 ως εξής:

 

{6. Εάν για την εξυπηρέτηση των σκοπών της εταιρείας απαιτηθεί η απόκτηση κατά κυριότητα από αυτήν ενός ή περισσότερων περιουσιακών στοιχείων από αυτά που της έχουν ανατεθεί, η κυριότητα αποκτάται με πράξη του Υπουργικού Συμβουλίου, η οποία δημοσιεύεται στην Εφημερίδα της Κυβερνήσεως, ύστερα από αιτιολογημένη εισήγηση των Υπουργών Οικονομίας και Οικονομικών και Πολιτισμού. Στην περίπτωση που τα παραπάνω περιουσιακά στοιχεία είναι ακίνητα, η πράξη του Υπουργικού Συμβουλίου αποτελεί τίτλο προς μεταγραφή, η οποία μεταγράφεται στα αρμόδια Υποθηκοφυλακεία χωρίς την καταβολή φόρου μεταβίβασης ακινήτου, καθώς και οποιουδήποτε τέλους, αμοιβής ή δικαιώματος τρίτου.}

 

δ. Τα δεύτερο και τρίτο εδάφια της παραγράφου 1 του άρθρου 23 του νόμου 3016/2002 αντικαθίστανται ως εξής:

 

{Στην Εταιρεία λειτουργεί νομική υπηρεσία, η οποία έχει την αρμοδιότητα νομικής υποστήριξης, δικαστικής και εξώδικης, της Εταιρείας. Η πλήρωση των θέσεων της υπηρεσίας αυτής γίνεται με απόφαση του Διοικητικού Συμβουλίου της Εταιρείας.}

 

ε. Στο άρθρο 24 του νόμου 3016/2002 μετά τη λέξη μελετών προστίθεται η λέξη υπηρεσιών, ενώ η φράση σύμφωνα με τα προεδρικά διατάγματα 370/1995 (ΦΕΚ 199/Α/1995), 346/1998 (ΦΕΚ 230/Α/1998) και 334/2000 (ΦΕΚ 279/Α/2000) και κάθε σχετική διάταξη της κείμενης νομοθεσίας αντικαθίσταται από τη φράση, σύμφωνα με τις διατάξεις της κοινοτικής νομοθεσίας, κατά παρέκκλιση από κάθε διάταξη νόμου ή κανονιστικής πράξης.

 

8. α. Στην παράγραφο 1 του άρθρου 11 του νόμου 2730/1999, όπως έχει τροποποιηθεί και ισχύει, η σύντμηση με τα γράμματα ΟΤΑ διαγράφεται.

 

β. Οι παράγραφοι 2, 3 και 4 του άρθρου 11 του νόμου 2730/1999, όπως έχουν τροποποιηθεί και ισχύουν, αντικαθίστανται ως εξής:

 

{2.α. Για την εξασφάλιση της προσωρινής χρήσης ιδιωτικών ακινήτων, για τους ίδιους παραπάνω σκοπούς, οφείλεται αποζημίωση που καθορίζεται οριστικά, μετά από αίτηση της Οργανωτικής Επιτροπής Ολυμπιακών Αγώνων Αθήνα 2004 Ανώνυμη Εταιρεία και του φορέα του έργου, κατά των ιδιοκτητών ή κάθε άλλου που κατέχει νόμιμα το ακίνητο, από το κατά τόπο αρμόδιο Μονομελές Πρωτοδικείο, εφαρμοζόμενης αναλόγως της διαδικασίας των ασφαλιστικών μέτρων (άρθρο 682 και επόμενα) του Κώδικα Πολιτικής Δικονομίας. Η δικάσιμος προσδιορίζεται σε δεκαπέντε (15) ημέρες από την κατάθεση της αίτησης. Η κλήτευση γίνεται με επίδοση αντιγράφου του δικογράφου τουλάχιστον δέκα (10) ημέρες πριν από τη δικάσιμο. Η αναβολή της συζήτησης για σημαντικό λόγο επιτρέπεται μόνο μία φορά σε δικάσιμο εντός επτά (7) ημερών.

 

β. Το δικαστήριο με την απόφασή του προσδιορίζει την αποζημίωση και διατάσσει συγχρόνως με την ίδια απόφαση την αποβολή κάθε κυρίου, νομέα, κατόχου και μισθωτή με τον όρο καταβολής ή παρακατάθεσης της αποζημίωσης που προσδιορίστηκε δικαστικά. Η απόφαση είναι προσωρινά εκτελεστή. Αυθαίρετοι κάτοχοι των ακινήτων αποβάλλονται μετά από προειδοποίηση ενός (1) μηνός, κατά τη διαδικασία της παραγράφου 3 του άρθρου 12 του παρόντος νόμου ανάλογα εφαρμοζόμενης. Η απόφαση του δικαστηρίου δημοσιεύεται, καθαρογράφεται και υπογράφεται σε δεκαπέντε (15) ημέρες από τη συζήτηση. Κατά της απόφασης επιτρέπεται η άσκηση έφεσης σε προθεσμία δέκα (10) ημερών από την κοινοποίηση της απόφασης. Η άσκηση της έφεσης δεν αναστέλλει την εκτέλεση της απόφασης. Αρμόδιο δικαστήριο για την εκδίκαση της έφεσης είναι το κατά τόπο αρμόδιο Εφετείο, το οποίο δικάζει την υπόθεση κατά τη διαδικασία των άρθρων 733, 734 του Κώδικα Πολιτικής Δικονομίας ανάλογα εφαρμοζομένων. Η απόφαση του Εφετείου δεν υπόκειται σε άλλο τακτικό ή έκτακτο ένδικο μέσο.

 

γ. Η απόφαση του Μονομελούς Πρωτοδικείου εκτελείται με βάση αντίγραφό της και επίδοση επιταγής για εκτέλεση, μόνο μετά την καταβολή ή παρακατάθεση του δικαστικά προσδιορισμένου ποσού της αποζημίωσης. Σε περίπτωση που το ακίνητο κατέχει νόμιμα τρίτος, χωρίς αυτός να είναι γνωστός στην αιτούσα, δεκτικός της καταβολής της αποζημίωσης, είναι και ο κύριος του ακινήτου. Αίτηση αναστολής ή αναβολής της εκτέλεσης, εφόσον δεν αναφέρεται στην πληρότητα της δικαστικά καθορισμένης αποζημίωσης, είναι απαράδεκτη. Η απόφαση του δικαστηρίου εκτελείται και κατά του μισθωτή του ακινήτου, υπό την προϋπόθεση ότι έχει τηρηθεί η διαδικασία της διάταξης που προβλέπεται στην παράγραφο 3 του παρόντος άρθρου και να έχει καταβληθεί στον μισθωτή η προβλεπόμενη από τη διάταξη αυτή αποζημίωση. Η αίτηση αναστολής εκτέλεσης δικάζεται εντός πέντε (5) ημερών από την κατάθεσή της, κατά τη διαδικασία των ασφαλιστικών μέτρων, μετά από επίδοση αντιγράφου της στον καθ' ου η αίτηση, πριν από σαράντα οκτώ (48) ώρες. Η απόφαση εκδίδεται εντός τριών (3) ημερών από τη συζήτηση της αίτησης.

 

δ. Διάδικοι στις διαφορές του παρόντος άρθρου είναι η Οργανωτική Επιτροπή Ολυμπιακών Αγώνων Αθήνα 2004 Ανώνυμη Εταιρεία, ο φορέας εκτέλεσης του έργου, ο οποίος είναι και ο υπόχρεος αποζημίωσης, ο ιδιοκτήτης ή ο από οποιαδήποτε νόμιμη αιτία κάτοχος του ακινήτου, δικαιούχος της αποζημίωσης.

 

ε. Εκκρεμείς δίκες διέπονται από τις παραπάνω διατάξεις εφόσον δεν συζητήθηκαν μέχρι την ισχύ του παρόντος. Αν όμως συζητήθηκαν οι υποθέσεις, το Μονομελές Πρωτοδικείο δικάζει κατά τις προϊσχύουσες διατάξεις.

 

3. Σε περίπτωση που τα αναφερόμενα στο άρθρο αυτό ακίνητα είναι μισθωμένα σε τρίτους, οι σχετικές συμβάσεις μίσθωσης λύονται πρόωρα ή αναστέλλονται, κατά παρέκκλιση από οποιαδήποτε άλλη διάταξη νόμου, μετά από μηνιαία έγγραφη προειδοποίηση από την εταιρεία Οργανωτική Επιτροπή Ολυμπιακών Αγώνων ΑΘΗΝΑ 2004 Ανώνυμη Εταιρεία ή τον φορέα εκτέλεσης του έργου. Η προειδοποίηση κοινοποιείται προς τους εκμισθωτές και τους μισθωτές. Για την πρόωρη λύση των μισθώσεων οφείλεται αποζημίωση στους μισθωτές, που ισούται με έξι (6) μηνιαία μισθώματα. Η αγωγή απόδοσης των ακινήτων στο Μονομελές Πρωτοδικείο μπορεί να υποβληθεί και κατά το άρθρο 69 του Κώδικα Πολιτικής Δικονομίας.

 

4. Τα εκάστοτε αναγκαία δημόσια ή ιδιωτικά ακίνητα για προσωρινή χρήση καθορίζονται με απόφαση του Υπουργού Περιβάλλοντος, Χωροταξίας και Δημόσιων Έργων, που δημοσιεύεται στην Εφημερίδα της Κυβερνήσεως, με την οποία ορίζεται ο υπόχρεος αποζημίωσης και μπορεί να ρυθμίζονται οποιαδήποτε θέματα σχετικά με την εφαρμογή της παρούσας διάταξης.}

 

γ. Έγγραφη προειδοποίηση γενόμενη πριν την ισχύ του παρόντος νόμου υπολογίζεται για τη μηνιαία προθεσμία σύμφωνα μετά οριζόμενα στην παράγραφο 3 του άρθρου 11 του νόμου 2730/1999, όπως τροποποιείται με τον παρόντα νόμο.

 

9. α. Το Εθνικό Μουσείο Σύγχρονης Τέχνης θα στεγασθεί στις υφιστάμενες κτιριακές εγκαταστάσεις του παλαιού εργοστασίου ΦΙΞ, που βρίσκεται στο Οικοδομικό Τετράγωνο 54001 του Δήμου Αθηναίων και περικλείεται από τις οδούς Καλλιρρόης, Αμβρόσιου Φραντζή και Λεωφόρου Συγγρού. Για το σκοπό αυτόν οι υφιστάμενες κτιριακές εγκαταστάσεις θα ανακατασκευαστούν, μετασκευαστούν, επισκευασθούν, ενισχυθούν και εκσυγχρονισθούν σύμφωνα με τις λειτουργικές απαιτήσεις του Εθνικού Μουσείου Σύγχρονης Τέχνης.

 

Για τον ίδιο σκοπό τροποποιείται το ρυμοτομικό σχέδιο στο παραπάνω Οικοδομικό Τετράγωνο με κατάργηση της στοάς και των αποτιμήσεων.

 

Απαιτείται η προηγούμενη έκδοση περιβαλλοντικής άδειας με την τήρηση της διαδικασίας που προβλέπεται στην περίπτωση δ)β' της παραγράφου 1 του άρθρου 4 του νόμου 1650/1986, όπως αντικαταστάθηκε με το άρθρο 2 του νόμου 3010/2002. Η έγκριση περιβαλλοντικών όρων χορηγείται με κοινή απόφαση των Υπουργών Περιβάλλοντος, Χωροταξίας και Δημόσιων Έργων και Πολιτισμού, ύστερα από γνώμη του Οργανισμού Ρυθμιστικού Σχεδίου Αθήνας. Οι απαιτούμενες οικοδομικές άδειες εκδίδονται από το Υπουργείο Περιβάλλοντος, Χωροταξίας και Δημόσιων Έργων και σύμφωνα με τη διαδικασία που ορίζεται στην περίπτωση β' της παραγράφου 1 του άρθρου 5 του νόμου 2730/1999, όπως ισχύει, ύστερα από αίτηση του κυρίου του ακινήτου ή του έλκοντος εξ αυτού δικαιώματα. Οι εργασίες του πρώτου εδαφίου της παρούσας παραγράφου γίνονται σύμφωνα με τους ισχύοντες για το Οικοδομικό Τετράγωνο 54001 του Δήμου Αθηναίων όρους και περιορισμούς δόμησης, με εξαίρεση το μέγιστο επιτρεπόμενο ύψος του κτιρίου, το οποίο καθορίζεται σε 30,00 m. Οι διατάξεις του νόμου 960/1979, όπως ισχύει, δεν εφαρμόζονται για την παθητική και ενεργητική πυροπροστασία εφαρμόζεται η πυροσβεστική διάταξη 3/1981.

 

β. Τυχόν απαιτούμενες οικοδομικές άδειες, τροποποιήσεις και αναθεωρήσεις αυτών ή ήδη εκδοθεισών αδειών, για το έργο προσθήκη κατ' επέκταση υπογείων κ.λ.π. του Μεγάρου Μουσικής Αθηνών εκδίδονται με απόφαση του Υπουργού Περιβάλλοντος, Χωροταξίας και Δημόσιων Έργων και σύμφωνα με τη διαδικασία που ορίζεται στην περίπτωση β' της παραγράφου 1 του άρθρου 5 του νόμου 2730/1999, όπως ισχύει, ύστερα από αίτηση του Οργανισμού Μεγάρου Μουσικής Αθηνών. Με την ίδια ή όμοιες αποφάσεις εγκρίνονται τυχόν παρεκκλίσεις που προβλέπονται από το άρθρο 6 παράγραφος 16 του νόμου 2052/1992, όπως ισχύει, σε συνδυασμό με τις διατάξεις του νόμου [Ν] 205/1975 και τις ρυθμίσεις του από 23-11-1995 προεδρικού διατάγματος (ΦΕΚ 1061/Δ/1995) και σύμφωνα με τη διαδικασία που ορίζεται στο προηγούμενο εδάφιο.

 

ΣΗΜΕΙΩΣΗ: Η παράγραφος 9 τίθεται όπως τροποποιήθηκε με το άρθρο 3 του νόμου 3524/2007 (ΦΕΚ 15/Α/2007).

 

10. Στην έκταση, εμβαδού 76.062 m2 της Ακτής Βουλιαγμένης του Δήμου Βουλιαγμένης Νομού Αττικής, όπως αυτή απεικονίζεται με στοιχεία Α, Β, Γ, Δ, Ε, Ζ, Η, Θ, Ι, Κ, Λ, Μ, Ν, Α, στο υπ' αριθμό 183/22-10-2003 τοπογραφικό διάγραμμα, το οποίο θεωρήθηκε από τον Προϊστάμενο του Οργανισμού Ρυθμιστικού Σχεδίου Αθήνας του Υπουργείου Περιβάλλοντος, Χωροταξίας και Δημόσιων Έργων, αντίγραφο του οποίου δημοσιεύεται με τον παρόντα νόμο στην Εφημερίδα της Κυβερνήσεως, κατεδαφίζονται τα υπ' αριθμόν 1 έως 13 υπάρχοντα κτίρια, συνολικής δομημένης επιφάνειας 1.001,05 m2, καθώς και οι επιπλέον υπάρχουσες πρόχειρες κατασκευές. Η προαναφερόμενη έκταση πρόκειται να χρησιμοποιηθεί προσωρινά για τη διεξαγωγή των Ολυμπιακών Αγωνισμάτων του Τρίαθλου και της Ποδηλασίας Δρόμου (Ατομική Χρονομέτρηση) και για τις υποστηρικτικές λειτουργίες των εν λόγω Ολυμπιακών Αγωνισμάτων. Επιτρέπεται η ανέγερση νέων μόνιμων κτιριακών εγκαταστάσεων, που χωροθετούνται σε υπάρχοντες εντός της ιδίας πιο πάνω έκτασης ακάλυπτους χώρους, ισοδύναμης δόμησης με τα κατεδαφιζόμενα κτίρια, ήτοι 1.001,05 m2, των οποίων η μεταολυμπιακή χρήση θα είναι σύμφωνα με τις χρήσεις: αποδυτήρια, χώροι υγιεινής, αναψυκτήρια και εστιατόρια, εμπορικά καταστήματα μέγιστης επιφάνειας 20 τετραγωνικά μέτρα, για την πώληση αποκλειστικών ειδών που σχετίζονται με τη λειτουργία της ακτής κολύμβησης,γραφεία προσωπικού διαχείρισης της ακτής, χώρους φύλαξης παιδιών, χώρους παροχής υγειονομικών συμβουλών και υπηρεσιών, ιατρείο, μικρό γυμναστήριο και βοηθητικούς χώρους μηχανολογικών εγκαταστάσεων και αποθήκευσης.

 

Οι επιτρεπόμενες χρήσεις στις νέες μόνιμες κτιριακές εγκαταστάσεις κατανέμονται με τους εξής όρους και περιορισμούς:

 

μέγιστη συνολική επιτρεπόμενη επιφάνεια εμπορικών καταστημάτων: 5% της συνολικής δομήσιμης επιφάνειας,
μέγιστη συνολική επιτρεπόμενη επιφάνεια αναψυκτηρίων εστιατορίων: 25% της συνολικής δομήσιμης επιφάνειας,
ελάχιστη επιφάνεια χώρων υγιεινής: 8% της συνολικής δομήσιμης επιφάνειας,
μέγιστη επιτρεπόμενη κάλυψη: 10% της επιφάνειας του χώρου, στην οποία περιλαμβάνονται οι ημιυπαίθριοι χώροι και οι υδάτινες δεξαμενές.
Μέγιστο επιτρεπόμενο ύψος των ανεγερθησομένων κτιρίων: 4,00 m και των ειδικών ελαφρών υπαίθριων κατασκευών: 7,50 m.

 

Για την τοποθέτηση των νέων κτιρίων εφαρμόζονται οι διατάξεις για τις αποστάσεις αυτών από τη γραμμή αιγιαλού με εξαίρεση τις ελαφρές κατασκευές (σκίαστρα, πύργος ναυαγοσώστη κ.λ.π.) που τοποθετούνται σε ελάχιστη απόσταση 15,00 m από αυτήν. Επιτρέπεται η τοποθέτηση προσωρινής προβλήτας κάθετα στην ακτή και στη θέση που απαιτεί η διεξαγωγή του Ολυμπιακού Αγωνίσματος του Τρίαθλου. Για την κατασκευή των πιο πάνω εγκαταστάσεων απαιτείται η προηγούμενη έγκριση περιβαλλοντικών όρων, σύμφωνα με τη διαδικασία που προβλέπεται στην περίπτωση δ)β' της παραγράφου 1 του άρθρου 4 του νόμου 1650/1986, όπως αντικαταστάθηκε με το άρθρο 2 του νόμου 3010/2002. Η έγκριση περιβαλλοντικών όρων χορηγείται με κοινή απόφαση των Υπουργών Περιβάλλοντος, Χωροταξίας και Δημόσιων Έργων, Ανάπτυξης, Πολιτισμού και Εμπορικής Ναυτιλίας, ύστερα από γνώμη του Οργανισμού Ρυθμιστικού Σχεδίου Αθήνας και επέχει θέση όλων των απαιτούμενων αδειών για οποιουδήποτε είδους έργα, εξαιρουμένης της οικοδομικής άδειας που εκδίδεται σύμφωνα με τις διατάξεις του άρθρου 5 παράγραφος 1)β του νόμου 2730/1999, όπως αυτές αντικαταστάθηκαν με τις διατάξεις του άρθρου 5 παράγραφος 1 του νόμου 2947/2001.

 

n.3207.03.21

 

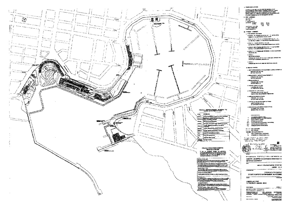
11. α. Οι τουριστικοί λιμένες Ζέας, Αλίμου και Φλοίσβου στην Αττική, στους οποίους θα φιλοξενηθούν κατά τη διάρκεια των Ολυμπιακών Αγώνων του 2004 σκάφη επισκεπτών και σκάφη στα οποία θα φιλοξενούνται επισκέπτες, χαρακτηρίζονται ως χώροι Ολυμπιακής φιλοξενίας με την έννοια του άρθρου 2 του νόμου 2947/2001 και διέπονται από τις διατάξεις του νόμου 2947/2001, όπως αυτός ισχύει σήμερα.

 

β. Στον Τουριστικό Λιμένα Φλοίσβου επιτρέπονται οι μεταολυμπιακές χρήσεις εμπορικών δραστηριοτήτων, διοίκησης, πολιτιστικές και αναψυχής, που εξυπηρετούν τη λειτουργία του τουριστικού λιμένα.

 

Οι υφιστάμενοι και οι χερσαίοι και λιμενικοί χώροι που θα κατασκευαστούν του Τουριστικού Λιμένα Φλοίσβου εμφαίνονται στο σχέδιο γενικής διάταξης, που θεωρήθηκε από τον Προϊστάμενο του Οργανισμού Ρυθμιστικού Σχεδίου Αθήνας και δημοσιεύεται σε φωτοσμίκρυνση με το νόμο αυτόν στην Εφημερίδα της Κυβερνήσεως. Η παρούσα διάταξη αποτελεί και την έγκριση χωροθέτησης. Ειδικότερα, εγκρίνεται η θέση και η διάταξη των κτιρίων και των λιμενικών εγκαταστάσεων που θα κατασκευασθούν στους πιο πάνω καθοριζόμενους χώρους, όπως φαίνεται και περιγράφεται στο παραπάνω σχέδιο γενικής διάταξης. Η μέγιστη επιτρεπόμενη δόμηση στον Τουριστικό Λιμένα Φλοίσβου ορίζεται σε 3.800 m2 για χώρους κύριας χρήσης και 5.000 m2 υπόγειων χώρων βοηθητικών χρήσεων, από τα οποία 1.200 m2 βοηθητικών χώρων εκτός περιγράμματος κτιρίου και 2.000 m2 χώρων υπόγειας στάθμευσης. Επιπλέον στον ως άνω Τουριστικό Λιμένα έκταση, που εμφαίνεται υπό στοιχεία Ν1, Ν2, Ν3, Β8, Β7, Β6, Ν1 στο ως άνω διάγραμμα, χωροθετείται για την εγκατάσταση ναυταθλητικών εγκαταστάσεων. Στην έκταση αυτή επιτρέπεται η κατασκευή κτισμάτων εμβαδού μέχρι 300 m2 κατά ανώτατο όριο.

 

γ. Στον τουριστικό Λιμένα Ζέας επιτρέπονται οι μεταολυμπιακές χρήσεις εμπορικών δραστηριοτήτων, διοίκησης και αναψυχής, που εξυπηρετούν τη λειτουργία του τουριστικού λιμένα. Οι υφιστάμενοι και χερσαίοι και λιμενικοί χώροι που θα κατασκευαστούν του Τουριστικού Λιμένα Ζέας Αττικής εμφαίνονται στο σχέδιο γενικής διάταξης, που θεωρήθηκε από τον Προϊστάμενο του Οργανισμού Ρυθμιστικού Σχεδίου Αθήνας και δημοσιεύεται σε φωτοσμίκρυνση με το νόμο αυτόν στην Εφημερίδα της Κυβερνήσεως. Η παρούσα διάταξη αποτελεί και την έγκριση χωροθέτησης. Ειδικότερα, εγκρίνεται η θέση και η διάταξη των κατασκευών και των λιμενικών εγκαταστάσεων που θα ανεγερθούν στους πιο πάνω καθοριζόμενους χώρους, όπως φαίνεται και περιγράφεται στο παραπάνω σχέδιο γενικής διάταξης.

 

δ. Η παρούσα έγκριση για τους Τουριστικούς Λιμένες Ζέας και Φλοίσβου επέχει θέση άδειας των αρμόδιων πολεοδομικών αρχών για την εκτέλεση των εργασιών που αφορούν στη μεταολυμπιακή χρήση των έργων. Οι απαιτούμενες, σύμφωνα με τις οικείες προδιαγραφές, μελέτες για την εκτέλεση των εργασιών κατατίθενται στην υπηρεσία που ορίζεται στην περίπτωση α της παραγράφου 3 του άρθρου 2 του νόμου 2947/2001, εντός εξήντα (60) ημερών από την έναρξη ισχύος του παρόντος.

 

ε. Για τις εργασίες επέκτασης των λιμενικών εγκαταστάσεων των ως άνω τουριστικών λιμένων, απαιτείται η προηγούμενη εκπόνηση και έγκριση Μελετών Περιβαλλοντικών Επιπτώσεων σύμφωνα με τις διατάξεις του άρθρου 4 του νόμου 1650/1986, όπως αντικαταστάθηκε με το άρθρο 2 του νόμου 3010/2002 (ΦΕΚ 91/Α/2002).

 

n.3207.03.22

 

12. Με κοινή απόφαση των Υπουργών Οικονομίας και Οικονομικών, Ανάπτυξης, Πολιτισμού και του τυχόν συναρμόδιου Υπουργού δύναται να παραχωρείται στην Ελληνικά Τουριστικά Ακίνητα Ανώνυμη Εταιρεία με αντάλλαγμα ή δωρεάν, η χρήση, διοίκηση και διαχείριση περιουσιακών στοιχείων που προκύπτουν από την εκτέλεση Ολυμπιακών έργων, υπό την προϋπόθεση ότι τα περιουσιακά αυτά στοιχεία εντάσσονται στους σκοπούς της. Εάν για την εξυπηρέτηση των σκοπών της παραπάνω εταιρείας απαιτηθεί η απόκτηση κατά κυριότητα από αυτήν ενός ή περισσότερων περιουσιακών στοιχείων, η κυριότητα αποκτάται με πράξη του Υπουργικού Συμβουλίου, η οποία δημοσιεύεται στην Εφημερίδα της Κυβερνήσεως, ύστερα από αιτιολογημένη εισήγηση των Υπουργών Οικονομίας και Οικονομικών, Ανάπτυξης, Πολιτισμού και του τυχόν συναρμόδιου Υπουργού. Για τον προσδιορισμό του ανταλλάγματος ισχύουν τα άρθρα 5 έως 7 του νόμου 3049/2002.

 

13. Επιτρέπεται η δημιουργία αθλητικών εγκαταστάσεων σε εκτός σχεδίου περιοχή του Δήμου Πυλαίας Θεσσαλονίκης, η οποία περικλείεται από τα στοιχεία Α, Β, Γ, Δ, Ε, Ζ, Η, Θ, Α, όπως φαίνεται σε διάγραμμα κλίμακας 1:500 που θεωρήθηκε από τον Προϊστάμενο της Διεύθυνσης Μελετών Αθλητικών Έργων της Γενικής Γραμματείας Αθλητισμού, του οποίου αντίτυπο σε φωτοσμίκρυνση δημοσιεύεται με τον παρόντα νόμο στην Εφημερίδα της Κυβερνήσεως. Οι όροι και περιορισμοί δόμησης του παραπάνω χώρου καθορίζονται ως εξής:

 

Μέγιστο επιτρεπόμενο ποσοστό κάλυψης: σαράντα τοις εκατό (40%)
Συντελεστής δόμησης: εξήντα εκατοστά (0,6)
Μέγιστη κατ' όγκο εκμετάλλευση: κτιριακός όγκος μέχρι διακόσιες πενήντα χιλιάδες κυβικά μέτρα (250.000 m3)
Μέγιστο επιτρεπόμενο ύψος: τριάντα πέντε μέτρα (35,0 m)
Ελάχιστη απόσταση από τα πίσω και πλάγια όρια του οικοπέδου: κατά Γενικό Οικοδομικό Κανονισμό

 

Η ρυμοτομική γραμμή ταυτίζεται με την οικοδομική γραμμή στο πρόσωπο του οικοπέδου.

 

n.3207.03.23

 

14. α. Η περίπτωση γ' της παραγράφου 12 του άρθρου 10 του νόμου 2947/2001, όπως αντικαταστάθηκε με την παράγραφο 10 του άρθρου 82 του νόμου 3057/2002, αντικαθίσταται ως εξής:

 

{γ. Εντός του παραπάνω χώρου καταργείται πεζόδρομος που βρίσκεται στα όρια του Ιερού Ναού Αγίας Βαρβάρας, διασφαλίζεται η κίνηση των πεζών από υπέργεια κατασκευή (ράμπα) που συνδέει την οδό Αδαμίδου με το πολιτιστικό κέντρο, μεταφέρεται ο πεζόδρομος που βρίσκεται στα όρια του Δημοτικού Παιδικού Σταθμού που συνδέει την οδό Αδαμίδου με την οδό Κλεάνθους νοτιότερα προς το γήπεδο ΠΑΟΚ, καθορίζεται θέση και διάταξη κτιρίων των δημοτικών αθλητικών εγκαταστάσεων που περιλαμβάνει κλειστό κολυμβητήριο, προπονητήριο, γραφεία και χώρους υποστήριξής τους, με στοιχεία α, β, γ, δ, ε, ζ, α όπως φαίνεται στο συνημμένο διάγραμμα με τους παρακάτω όρους δόμησης:

 

συντελεστής δόμησης: 1
ποσοστό κάλυψης: 100 % του κόκκινου περιγράμματος
μέγιστο επιτρεπόμενο ύψος του ανεγερθησόμενου κτιρίου: 6 m από τη στάθμη του εδάφους.
Τροποποιείται ο χώρος ανέγερσης του δημοτικού παιδικού σταθμού και καθορίζεται νέος με στοιχεία η, θ, ι, κ, η καθορίζοντας με κόκκινη γραμμή το διάγραμμα κάλυψης του κτιρίου με τους παρακάτω όρους δόμησης:
ποσοστό κάλυψης: 100 % του κόκκινου περιγράμματος
μέγιστο επιτρεπόμενο ύψος: 8,5 m

 

Ο χώρος που δημιουργείται μεταξύ του χώρου ανέγερσης του δημοτικού παιδικού σταθμού, του νότιου πεζόδρομου και των δημοτικών αθλητικών εγκαταστάσεων χαρακτηρίζεται ως κοινόχρηστο πράσινο.}

 

β. Το διάγραμμα κλίμακας 1:500 που συνοδεύει τις διατάξεις της παραγράφου 12 του άρθρου 10 του νόμου 2947/2001, όπως αντικαταστάθηκε με την παράγραφο 10 του άρθρου 82 του νόμου 3057/2002 και τροποποιούνται με τον παρόντα νόμο, αντικαθίσταται με νέο διάγραμμα όμοιας κλίμακας που θεωρήθηκε από τον Πρόεδρο του Οργανισμού Ρυθμιστικού Σχεδίου Θεσσαλονίκης, αντίτυπο του οποίου σε φωτοσμίκρυνση δημοσιεύεται με το νόμο αυτόν στην Εφημερίδα της Κυβερνήσεως.

 

γ. Για την έκδοση των πάσης φύσεως οικοδομικών αδειών των έργων και εργασιών που αναφέρονται και ρυθμίζονται στην παράγραφο 12 του άρθρου 10 του νόμου 2947/2001, όπως αντικαταστάθηκε με την παράγραφο 10 του άρθρου 82 του νόμου 3057/2002 και τροποποιείται με τον παρόντα νόμο, αρμόδια είναι η υπηρεσία που ορίζεται στην περίπτωση α' της παραγράφου 3 του άρθρου 2 του νόμου 2947/2001.

 

n.3207.03.18

 

15. Ως Ολυμπιακά μπορούν να χαρακτηρίζονται στο νομό Θεσσαλονίκης και έργα που είναι αναγκαία για τη διεκδίκηση ή την οργάνωση της Παγκόσμιας Έκθεσης ΕΧΡΟ 2008. Το ίδιο ισχύει στο Νομό Αχαΐας ως προς έργα που εντάσσονται στο πρόγραμμα Πάτρα Πολιτιστική Πρωτεύουσα της Ευρώπης 2006. Στις περιπτώσεις αυτές οι σχετικές ειδικές διατάξεις, εφόσον η ισχύς τους λήγει νωρίτερα, εξακολουθούν να ισχύουν μέχρι την ολοκλήρωση των έργων αυτών και πάντως μέχρι 31-12-2008 για το Νομό Θεσσαλονίκης και μέχρι 31-12-2006 για το Νομό Αχαΐας.

 

16.α. Στο οικοδομικό τετράγωνο που περικλείεται από τις οδούς Μοναστηρίου, Οδυσσέως, 26ης Οκτωβρίου και την Πλατεία Δημοκρατίας του εγκεκριμένου ρυμοτομικού σχεδίου Δήμου Θεσσαλονίκης καταργείται ο προβλεπόμενος χώρος για το κτίριο Πολιτιστικού Κέντρου, καθορίζεται χώρος στάθμευσης αυτοκινήτων δημόσιας χρήσης με στοιχεία Α - Β - Γ - Γ' - Δ - Δ' - Ζ - Η - Θ - Ι - Κ - Α και επιβάλλεται στοά πλάτους 5,00 m στο πρόσωπο αυτού επί της οδού 26ης Οκτωβρίου, όπως φαίνεται στο διάγραμμα υπό κλίμακα 1:500 που θεωρήθηκε από τη Διεύθυνση Μελετών Αρχιτεκτονικών Έργων του Δήμου Θεσσαλονίκης και του οποίου αντίτυπο σε φωτοσμίκρυνση θα δημοσιευθεί με το νόμο αυτόν στην Εφημερίδα της Κυβερνήσεως.

 

β. Για την κατασκευή του ανωτέρω έργου δεν απαιτείται η έκδοση του προεδρικού διατάγματος που προβλέπεται στην παράγραφο 1 του άρθρου 8 του νόμου 2052/1992. Όπου στις διατάξεις των άρθρων 1, 2 και 3 του νόμου 2052/1992, όπως αυτός τροποποιήθηκε με το νόμο 2947/2001 αναφέρεται η έκδοση προεδρικού διατάγματος μετά από πρόταση του Υπουργού Περιβάλλοντος, Χωροταξίας και Δημόσιων Έργων, για τις ανάγκες εφαρμογής της παρούσας παραγράφου, νοείται αντίστοιχα ο καθορισμός θέσεως της προηγούμενης περιπτώσεως.

 

n.3207.03.19

 



Copyright © 2017 TechnoLogismiki. Με την επιφύλαξη παντός δικαιώματος.