| Συνδεθείτε στην Υπηρεσία Νομοσκόπιο | | | | | Νέοι χρήστες | | Εάν είστε νέος χρήστης, θα πρέπει να δημιουργήσετε ένα ΔΩΡΕΑΝ λογαριασμό προκειμένου να φύγει το παράθυρο αυτό και να αποκτήσετε πλήρη πρόσβαση στην υπηρεσία Νομοσκόπιο. | | Δημιουργία νέου λογαριασμού | | |
Νόμος 3559/2007: Κύρωση Σύμβασης Παραχώρησης του Έργου της Μελέτης, Κατασκευής, Χρηματοδότησης, Λειτουργίας, Συντήρησης και Εκμετάλλευσης του Αυτοκινητοδρόμου Κόρινθος - Τρίπολη - Καλαμάτα και Κλάδος Λεύκτρο - Σπάρτη και άλλες διατάξεις, (ΦΕΚ 102/Α/2007), 14-05-2007.
Ο Πρόεδρος της Ελληνικής Δημοκρατίας
Εκδίδουμε τον ακόλουθο νόμο που ψήφισε η Βουλή:
Άρθρο δεύτερο
1. α) Από την έναρξη ισχύος του παρόντος νόμου περιέρχονται άνευ ανταλλάγματος στο Δημόσιο κατά πλήρη κυριότητα οι παρόδιες εκτάσεις του τμήματος του οδικού διευρωπαϊκού δικτύου Κορίνθου - Τριπόλεως από τον ανισόπεδο κόμβο Τριπόλεως επί του διευρωπαϊκού δικτύου Πατρών - Αθηνών - Θεσσαλονίκης - Ευζώνων έως και τον ανισόπεδο κόμβο Νότιας Εισόδου Τριπόλεως, που μεταβιβάσθηκαν από το Δημόσιο στην Ανώνυμη Εταιρεία Εκμετάλλευσης και Διαχείρισης Ελληνικών Αυτοκινητοδρόμων Ανώνυμη Εταιρεία με το διακριτικό τίτλο Ταμείο Εθνικής Οδοποιίας, δυνάμει της παραγράφου 1 του άρθρου 5 του νόμου 2938/2001 (ΦΕΚ 178/Α/2001), στις οποίες περιλαμβάνονται και τα στοιχεία που αναφέρονται στο δεύτερο εδάφιο της ανωτέρω παραγράφου.
β) Η ανωτέρω μεταβίβαση συντελείται από της μεταγραφής του αποσπάσματος της απογραφής που διενεργήθηκε, σύμφωνα με την παράγραφο 5 του άρθρου 5 του ανωτέρω νόμου, κατά το τμήμα της που περιέχει περιγραφή των δια του παρόντος μεταβιβαζομένων ακινήτων και εμπραγμάτων δικαιωμάτων. Η μεταγραφή πραγματοποιείται ατελώς το αργότερο εντός μηνός από την Ημερομηνία Έναρξης Παραχώρησης, όπως αυτή ορίζεται με το άρθρο 5.2.2 της κυρούμενης Συμβάσεως Παραχώρησης.
γ) Από της μεταγραφής αυτής και με την επιφύλαξη της παραγράφου 2 του παρόντος άρθρου, το Δημόσιο υπεισέρχεται αυτοδικαίως και σε όλα τα δικαιώματα και υποχρεώσεις της Ανώνυμης Εταιρείας Εκμετάλλευσης και Διαχείρισης Ελληνικών Αυτοκινητοδρόμων Ανώνυμη Εταιρεία από ενοχικές συμβάσεις της με τρίτους, οι οποίες αφορούν στα ανωτέρω μεταβιβαζόμενα περιουσιακά στοιχεία.
δ) Οι μεταβιβάσεις και μεταβολές του παρόντος άρθρου απαλλάσσονται από κάθε φόρο, τέλος, εισφορά, καθώς και δικαιώματα υπέρ του Δημοσίου ή οποιουδήποτε τρίτου.
ε) Ως αξία για την αναδιαμόρφωση του μετοχικού κεφαλαίου της Ανώνυμης Εταιρείας Εκμετάλλευσης και Διαχείρισης Ελληνικών Αυτοκινητοδρόμων Ανώνυμη Εταιρεία, μετά την ανωτέρω μεταβίβαση, λαμβάνεται η αξία στην οποία τα μεταβιβαζόμενα με την παράγραφο 1 του παρόντος άρθρου περιουσιακά στοιχεία αποτιμήθηκαν, σύμφωνα με την παράγραφο 4 του άρθρου 5 του νόμου 2938/2001.
2. Από την ανωτέρω μεταγραφή και μέχρι και την ημερομηνία επίτευξης της Πρώτης Αποκλειστικής Τμηματικής Προθεσμίας του άρθρου 18.2.1 της κυρούμενης με τον παρόντα νόμο Συμβάσεως Παραχώρησης, όπως αυτή προκύπτει από την οικεία Βεβαίωση Περάτωσης Εργασιών Αποκλειστικής Τμηματικής Προθεσμίας, που προβλέπεται στο άρθρο 18.4.3 (iii) της ίδιας Συμβάσεως, η εταιρεία Ανώνυμη Εταιρεία Εκμετάλλευσης και Διαχείρισης Ελληνικών Αυτοκινητοδρόμων Ανώνυμη Εταιρεία ασκεί αντί του Δημοσίου, αλλά για δικό της λογαριασμό, τα δικαιώματα που απορρέουν από την παράγραφο 1.α του άρθρου 3 του νόμου 2938/2001 και έχει τις αντίστοιχες υποχρεώσεις επί του τμήματος που ορίζεται στην παράγραφο 1 του παρόντος άρθρου.
3. α) Εντός πέντε (5) ημερών από την έγγραφη πρόσκληση της αρμόδιας υπηρεσίας του Υπουργείου Περιβάλλοντος, Χωροταξίας και Δημόσιων Έργων προς την εταιρεία Ανώνυμη Εταιρεία Εκμετάλλευσης και Διαχείρισης Ελληνικών Αυτοκινητοδρόμων Ανώνυμη Εταιρεία και την Παραχωρησιούχο εταιρεία με το διακριτικό τίτλο ΜΩΡΕΑΣ ΑΝΩΝΥΜΗ ΕΤΑΙΡΕΙΑ, στην οποία επισυνάπτεται η οικεία Βεβαίωση Περάτωσης Εργασιών της προηγούμενης παραγράφου, υπογράφεται μεταξύ της ανωτέρω υπηρεσίας του Υπουργείου Περιβάλλοντος, Χωροταξίας και Δημόσιων Έργων, της Ανώνυμης Εταιρείας Εκμετάλλευσης και Διαχείρισης Ελληνικών Αυτοκινητοδρόμων Ανώνυμη Εταιρεία και του Παραχωρησιούχου, πρωτόκολλο παράδοσης και παραλαβής, με το οποίο παραδίδονται οι αναφερόμενοι στην περίπτωση (α) της παραγράφου 1 του παρόντος άρθρου χώροι και εγκαταστάσεις στον Παραχωρησιούχο, σύμφωνα με τις διατάξεις του άρθρου 12 της κυρούμενης Συμβάσεως Παραχώρησης.
β) Από της υπογραφής του σχετικού πρωτοκόλλου, ο Παραχωρησιούχος υπεισέρχεται ως εκμισθωτής, αποκλειστικά για το χρόνο της Περιόδου Παραχώρησης, στις μισθωτικές συμβάσεις που περιλαμβάνονται στις αναφερόμενες, στην περίπτωση (γ) της παραγράφου 1 του παρόντος άρθρου, ενοχικές συμβάσεις.
γ) Εκκρεμείς δίκες της Ανώνυμης Εταιρείας Εκμετάλλευσης και Διαχείρισης Ελληνικών Αυτοκινητοδρόμων Ανώνυμη Εταιρεία κατά την ημερομηνία υπογραφής του ανωτέρω πρωτοκόλλου, καθώς και εκείνες που εγείρονται εφεξής και αφορούν στο προηγούμενο διάστημα, συνεχίζονται ή ασκούνται επ' ονόματι του Δημοσίου ή απευθύνονται κατ' αυτού.
Άρθρο τρίτο
1. Για την εφαρμογή των διατάξεων του άρθρου 24.1.5 (1) και (2) της κυρούμενης με το άρθρο πρώτο του παρόντος, Συμβάσεως Παραχώρησης, εφαρμόζονται αναλόγως οι διατάξεις του άρθρου τρίτου του νόμου 3535/2007 (ΦΕΚ 41/Α/2007).
2. Ο προβλεπόμενος από το άρθρο 15.7 της κυρούμενης με τον παρόντα νόμο Συμβάσεως Παραχώρησης πειθαρχικός έλεγχος επί των εργοληπτικών επιχειρήσεων του Κατασκευαστή, των μελών του και των τυχόν υπεργολάβων του, όπως και των τυχόν υπεργολάβων του Παραχωρησιούχου, ασκείται με ανάλογη εφαρμογή των διατάξεων του άρθρου τέταρτου του νόμου 3535/2007 (ΦΕΚ 41/Α/2007).
3. Κάθε άλλη γενική ή ειδική διάταξη που αντίκειται στις διατάξεις του παρόντος νόμου ή αφορά σε θέματα που ρυθμίζονται από αυτόν δεν ισχύει, όσον αφορά στο αντικείμενο της Συμβάσεως Παραχώρησης που κυρώνεται με το νόμο αυτόν.
Άρθρο τέταρτο
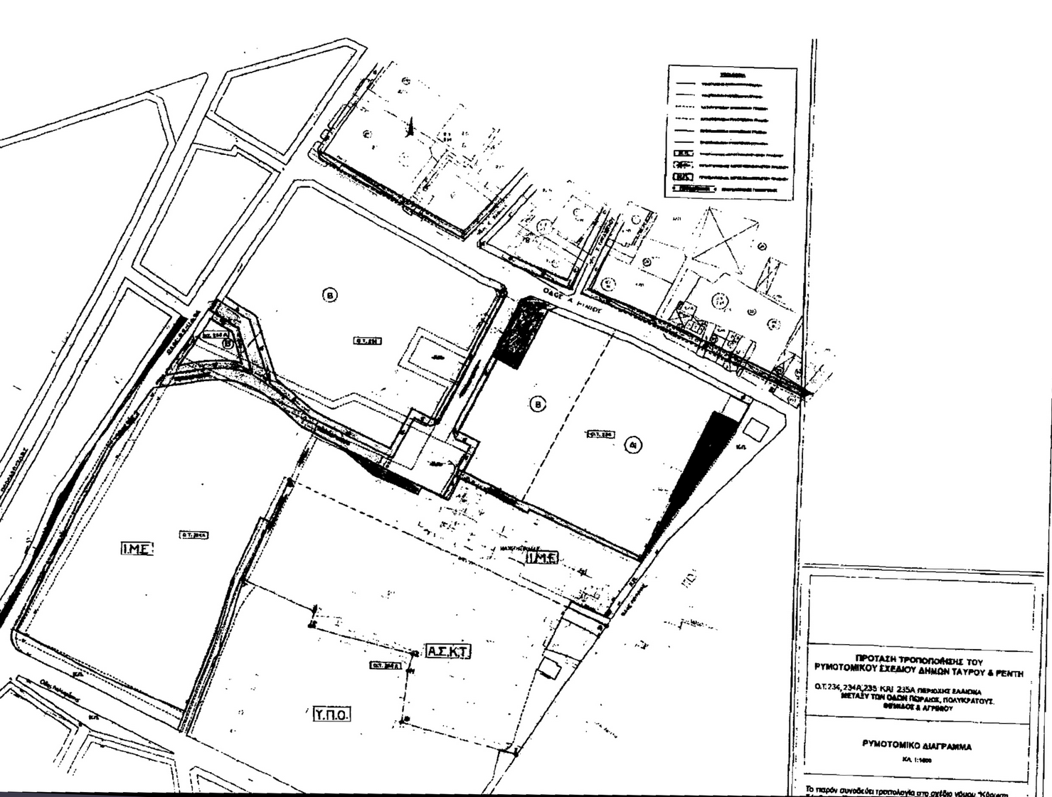
1. Στα εγκεκριμένα ρυμοτομικά σχέδια των Δήμων Ταύρου και Αγίου Ιωάννη Ρέντη, και συγκεκριμένα στο τμήμα του πολιτιστικού πόλου Ελαιώνα, που περιβάλλεται από τις οδούς Πειραιώς, Αγρινίου, Θέμιδος και Πολυκράτους (οικοδομικά τετράγωνα 234 και 235), επέρχονται οι ακόλουθες τροποποιήσεις, όπως απεικονίζονται στο συν-δημοσιευόμενο στην Εφημερίδα της Κυβερνήσεως με κλίμακα 1:1.000 και ημερομηνία 05-04-2007 τοπογραφικό διάγραμμα, που θεωρήθηκε από τον Προϊστάμενο του Οργανισμού Ρυθμιστικού Σχεδίου Αθήνας στις 18-10-2006:
α) Δημιουργούνται τέσσερα νέα οικοδομικά τετράγωνα με αριθμούς 234, 234Α, 235 και 235Α και νέοι κοινόχρηστοι χώροι (δρόμοι, πεζόδρομοι, πλατείες, κοινόχρηστο πράσινο). Στα τετράγωνα αυτά επιβάλλεται προκήπιο πλάτους 4 και 6 m και στοά πλάτους 3 m.
β) Στο Οικοδομικό Τετράγωνο 235Α επιτρέπονται οι χρήσεις της κατηγορίας Β του από 20-09-1995 προεδρικού διατάγματος (ΦΕΚ 1049/Δ/31995) περιοχής Ελαιώνα, εξαιρουμένων των κέντρων διασκέδασης, των εγκαταστάσεων χονδρεμπορίου και των αποθηκών.
γ) Επεκτείνεται η κοινωφελής χρήση Ανωτάτη Σχολή Καλών Τεχνών, μέχρι το όριο της οδού Πειραιώς.

2. Στο οικόπεδο ιδιοκτησίας του Ιδρύματος Μείζονος Ελληνισμού, εντός του Οικοδομικού Τετραγώνου 234Α, καθορίζονται οι ακόλουθοι όροι και περιορισμοί δόμησης:
α) κάλυψη 50%,
β) συντελεστής δόμησης 0,8,
γ) μέγιστο ύψος κτισμάτων 21 m,
δ) συντελεστής κατ' όγκον εκμετάλλευσης 6,1.
3. Στο οικόπεδο ιδιοκτησίας του Ιδρύματος Μιχάλη Κακογιάννη επί της οδού Πειραιώς 206 (Οικοδομικό Τετράγωνο 56), καθορίζεται κατά παρέκκλιση των κειμένων διατάξεων πολλαπλασιαστικός συντελεστής κατ' όγκον εκμετάλλευσης 6,0.
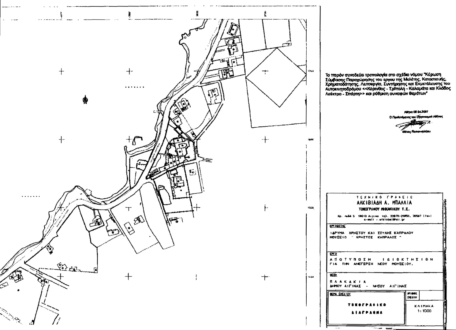
4. Στην εκτός σχεδίου περιοχή Πλακάκια της νήσου Αίγινας Νομού Αττικής, καθορίζονται χώροι περικλεισμένοι με πράσινη γραμμή και με στοιχεία ο πρώτος Α, Β, Γ, Δ, Ε, Ζ, Α και ο δεύτερος Η, Θ, Ι, Κ, Η, οι οποίοι εμφαίνονται σε πρωτότυπο τοπογραφικό διάγραμμα με κλίμακα 1:1.000, που θεωρήθηκε από τον Προϊστάμενο του Οργανισμού Ρυθμιστικού Σχεδίου Αθήνας και του οποίου αντίτυπο σε φωτοσμίκρυνση συν-δημοσιεύεται στην Εφημερίδα της Κυβερνήσεως. Στον πρώτο εκ των ως άνω χώρων θα κατασκευασθεί και θα λειτουργήσει η Νέα Πτέρυγα του Μουσείου Χρήστου Καπράλου και στο δεύτερο θα λειτουργήσει το ήδη υφιστάμενο Μουσείο.

5. Στο χώρο με στοιχεία Α, Β, Γ, Δ, Ε, Ζ, Α της παραγράφου 4 καθορίζονται όροι και περιορισμοί δόμησης ως ακολούθως:
Α. Μέγιστο ποσοστό κάλυψης: τριάντα εκατοστά (30%) της επιφάνειας του χώρου.
Β. Συντελεστής δόμησης: τριάντα εκατοστά (30%).
Γ. Μέγιστο επιτρεπόμενο ύψος: 8,80 m.
Δ. Αριθμός ορόφων: 2.
Ε. Ελάχιστη απόσταση κτιρίων από τα όρια του χώρου: 7,00 m.
Ζ. Προϋπόθεση για την έκδοση της οικοδομικής άδειας είναι η έγκριση της σχετικής μελέτης από την αρμόδια υπηρεσία του Υπουργείου Πολιτισμού και την αρμόδια Επιτροπή Πολεοδομικού και Αρχιτεκτονικού Ελέγχου.
Άρθρο πέμπτο
Τα εδάφια δεύτερο και τρίτο της παραγράφου 2 του άρθρου 6 του νόμου 2664/1998, όπως ο νόμος αυτός έχει τροποποιηθεί και ισχύει, αντικαθίστανται ως εξής:
{Η αγωγή (αναγνωριστική ή διεκδικητική) ασκείται από όποιον έχει έννομο συμφέρον μέσα σε αποκλειστική προθεσμία οκτώ (8) ετών, εκτός αν πρόκειται για το Ελληνικό Δημόσιο και για μόνιμους κατοίκους εξωτερικού ή εργαζόμενους μόνιμα στο εξωτερικό κατά τη λήξη της οκταετούς αυτής προθεσμίας, για τους οποίους η προθεσμία άσκησης της αγωγής είναι δέκα (10) ετών. Για πρόσωπα των δύο τελευταίων κατηγοριών, που εγκαταστάθηκαν στην Ελλάδα κατά την τελευταία διετία της οκταετούς κατά τα ως άνω προθεσμίας, η προθεσμία για την άσκηση της αγωγής δεν συμπληρώνεται πριν από την πάροδο διετίας από την οριστική εγκατάσταση τους στην Ελλάδα.}
Άρθρο έκτο
1.Στο τελευταίο εδάφιο της παραγράφου 6 του άρθρου 4 του νόμου 3263/2004 (ΦΕΚ 179/Α/2004), μεταξύ των λέξεων πέντε (5) και ημερών, προστίθενται οι λέξεις το πολύ εργασίμων.
Η διάταξη αυτή εφαρμόζεται στους διαγωνισμούς των οποίων η προκήρυξη θα δημοσιευθεί ένα τουλάχιστον μήνα μετά την έναρξη εφαρμογής του παρόντος. Ως δημοσίευση νοείται η αποστολή της περίληψης για δημοσίευση στην Εφημερίδα των Ευρωπαϊκών Κοινοτήτων ή, σε διαγωνισμούς κάτω του πεδίου εφαρμογής της Οδηγίας για τις δημόσιες συμβάσεις, η πρώτη δημοσίευση στον ελληνικό τύπο.
2. Στο άρθρο 7 του νόμου 3548/2007 (ΦΕΚ 68/Α/2007) προστίθεται, αφότου ο νόμος αυτός ίσχυσε, παράγραφος 5 ως ακολούθως:
{5. Οι διατάξεις των παραγράφων A3 και Β3 του άρθρου 3 του παρόντος εφαρμόζονται στους διαγωνισμούς για την ανάθεση δημόσιων συμβάσεων έργων, προμηθειών και υπηρεσιών (περιλαμβανομένων των μελετών) που η ημερομηνία υποβολής προσφορών ορίζεται μετά την 01-09-2007.}
Άρθρο έβδομο
Η ισχύς του παρόντος αρχίζει δέκα (10) ημέρες από τη δημοσίευση του στην Εφημερίδα της Κυβερνήσεως.
Παραγγέλνουμε τη δημοσίευση του παρόντος στην Εφημερίδα της Κυβερνήσεως και την εκτέλεσή του ως νόμου του Κράτους.
Αθήνα, 10-05-2007
Ο Πρόεδρος της Δημοκρατίας