-1) {
var s = source.indexOf("", e);
scripts.push(source.substring(s_e+1, e));
source = source.substring(0, s) + source.substring(e_e+1);
}
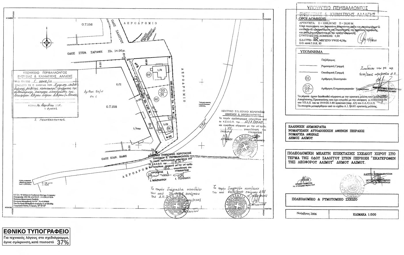
for(var i=0; i Εγκρίνεται το πολεοδομικό σχέδιο τμήματος της πολεοδομικής ενότητας εκατέρωθεν της Λεωφόρου Αλίμου του Δήμου Αλίμου και ειδικότερα στο τέρμα της οδού Ζαλόγγου με τον καθορισμό οικοδομήσιμου χώρου, έγκριση οδού και πεζοδρόμων, όπως φαίνεται στο σχετικό πρωτότυπο διάγραμμα σε κλίμακα 1:500 που θεωρήθηκε από τον Προϊστάμενο της Διεύθυνσης Τοπογραφικών Εφαρμογών με την 8842/2011 πράξη του και που αντίτυπο του σε φωτοσμίκρυνση δημοσιεύεται με το παρόν διάταγμα. ";
if(window.XMLHttpRequest){
try{xmlhttp = new XMLHttpRequest();}catch(e){
xmlhttp = false;}}
else if(window.ActiveXObject){
try{xmlhttp=new ActiveXObject("Msxml2.XMLHTTP");}catch(e){
try{xmlhttp=new ActiveXObject("Microsoft.XMLHTTP");}catch(e){
xmlhttp = false;}}}
if (xmlhttp) {
xmlhttp.onreadystatechange=function(){
if(xmlhttp.readyState==4){
if(xmlhttp.status==200){
var mystr=xmlhttp.responseText;
var mspanner=document.getElementById(target);
mspanner.innerHTML="";
var newdiv = document.createElement('div');
newdiv.innerHTML = parseScript(mystr);
mspanner.appendChild(newdiv);
}}}
}
var myurl=url;
if (params.length!=0) {
myurl=myurl+"?"+params;
}
xmlhttp.open("POST",myurl,true);
xmlhttp.send(null);
}

Συνδεθείτε στην Υπηρεσία Νομοσκόπιο
Νέοι χρήστες Εάν είστε νέος χρήστης, θα πρέπει να δημιουργήσετε ένα ΔΩΡΕΑΝ λογαριασμό προκειμένου να φύγει το παράθυρο αυτό και να αποκτήσετε πλήρη πρόσβαση στην υπηρεσία Νομοσκόπιο. Δημιουργία νέου λογαριασμού 