Προεδρικό διάταγμα 17/3/11d - Άρθρο 1

Άρθρο 1


Συνδεθείτε στην Υπηρεσία Νομοσκόπιο
Είσοδος στην υπηρεσία Νομοσκόπιο.
   
Χρήστης
Κωδικός
  Υπενθύμιση στοιχείων λογαριασμού
   
 
Νέοι χρήστες
Εάν είστε νέος χρήστης, θα πρέπει να δημιουργήσετε ένα ΔΩΡΕΑΝ λογαριασμό προκειμένου να φύγει το παράθυρο αυτό και να αποκτήσετε πλήρη πρόσβαση στην υπηρεσία Νομοσκόπιο.
Δημιουργία νέου λογαριασμού

 

 

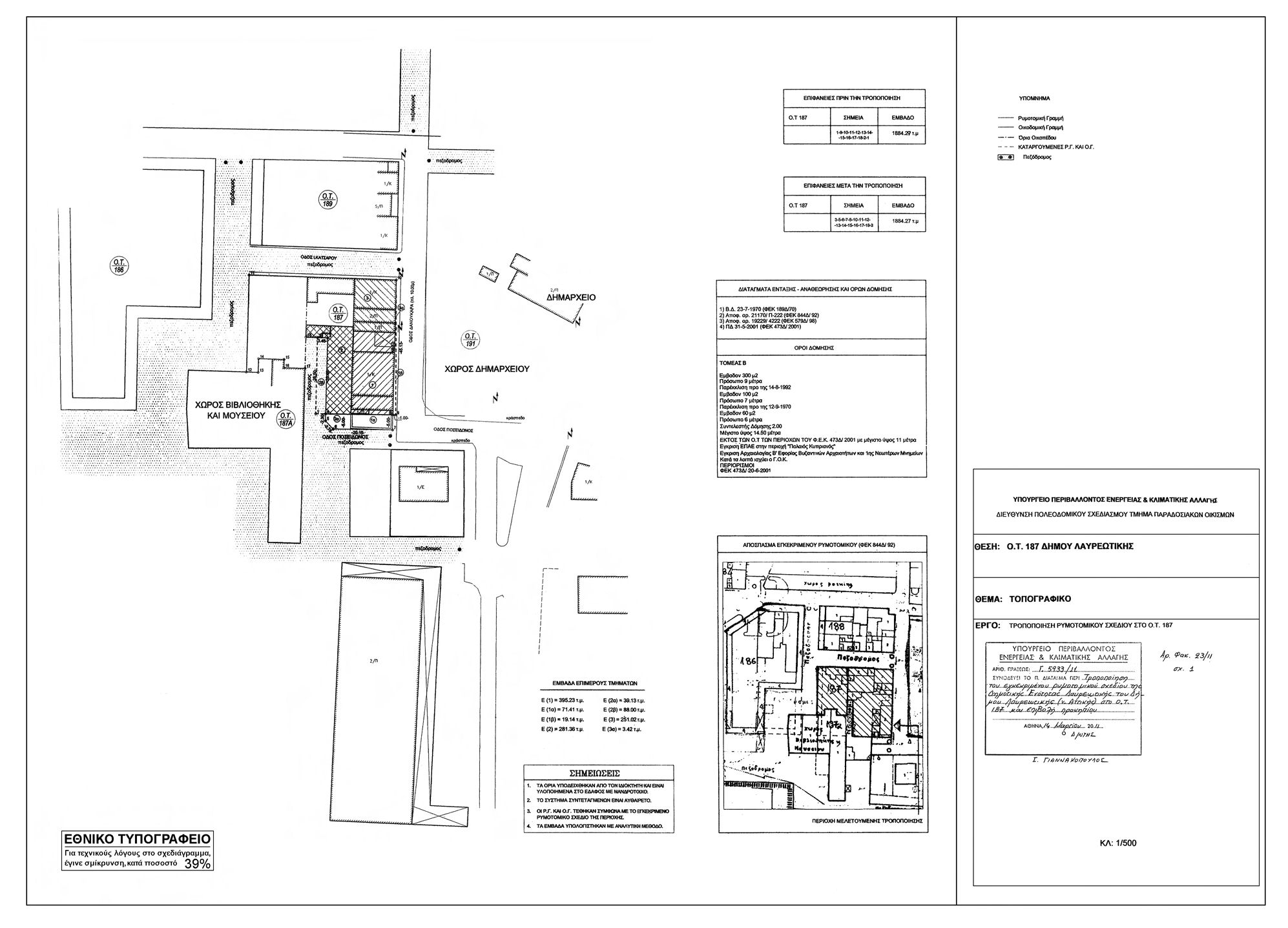
Εγκρίνεται η τροποποίηση του εγκεκριμένου ρυμοτομικού σχεδίου της Δημοτικής Ενότητας Λαυρεωτικής του Δήμου Λαυρεωτικής (νομός Αττικής) στο τμήμα της πόλης που έχει χαρακτηριστεί ως παραδοσιακό με το από 31-05-2001 προεδρικό διάταγμα (ΦΕΚ 473/Δ/2001) και ειδικότερα στο Οικοδομικό Τετράγωνο 187 (Τομέας V) με τη μετατόπιση οικοδομικών ρυμοτομικών γραμμών, τη μείωση πλάτους πεζοδρόμου Ποσειδώνος και την αύξηση πλάτους εσωτερικού πεζοδρόμου, όπως φαίνεται στο σχετικό πρωτότυπο διάγραμμα σε κλίμακα 1:500, που θεωρήθηκε από τον Προϊστάμενο της Διεύθυνσης Τοπογραφικών Εφαρμογών με την 5933/2011 πράξη του και που αντίτυπό του σε φωτοσμίκρυνση δημοσιεύεται με το παρόν διάταγμα.

 

pd.17.3.11d



Copyright © 2020 TechnoLogismiki. Με την επιφύλαξη παντός δικαιώματος.