| Συνδεθείτε στην Υπηρεσία Νομοσκόπιο | | | | | Νέοι χρήστες | | Εάν είστε νέος χρήστης, θα πρέπει να δημιουργήσετε ένα ΔΩΡΕΑΝ λογαριασμό προκειμένου να φύγει το παράθυρο αυτό και να αποκτήσετε πλήρη πρόσβαση στην υπηρεσία Νομοσκόπιο. | | Δημιουργία νέου λογαριασμού | | |
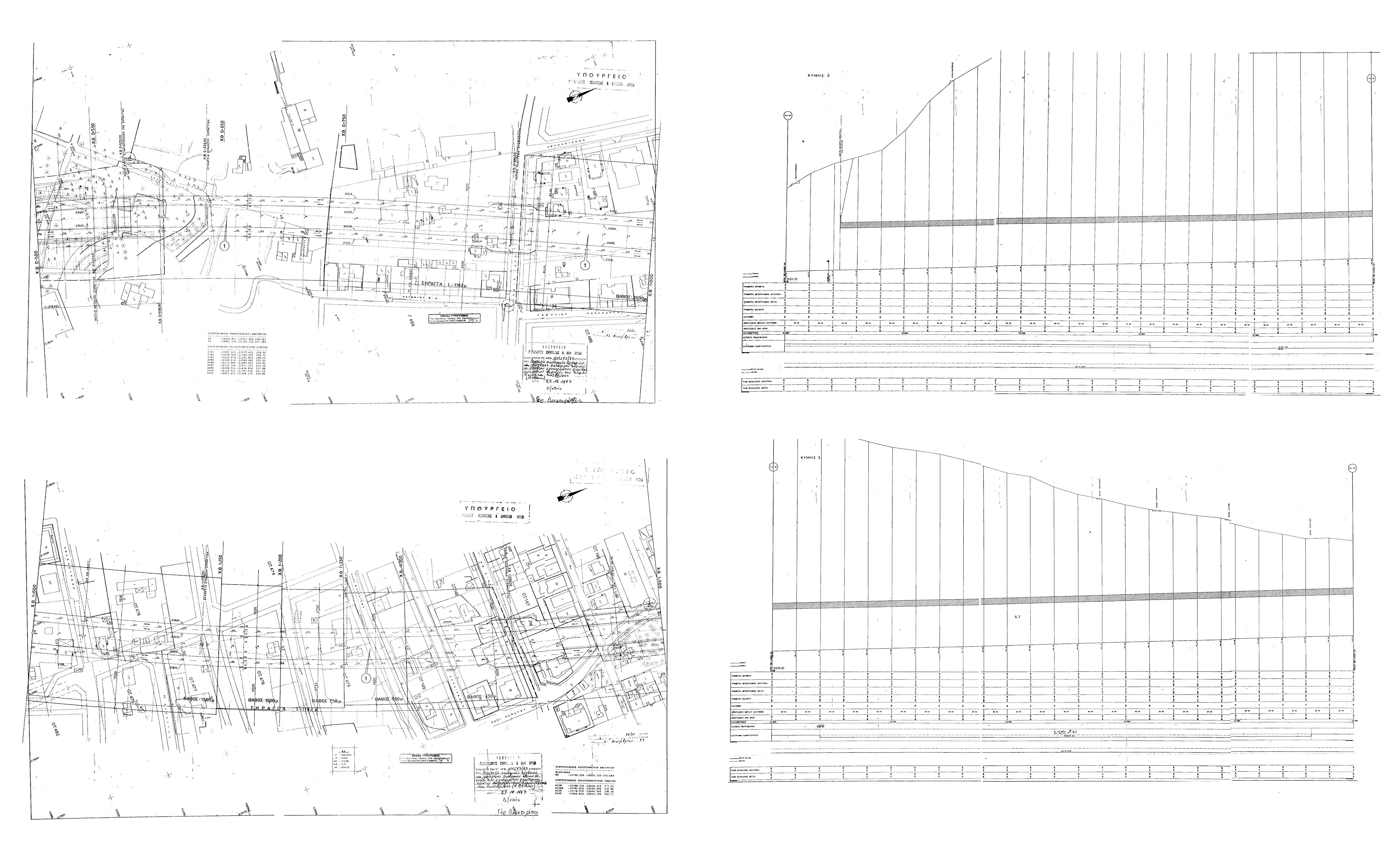
1. Καθορίζεται το μέγιστο επιτρεπόμενο βάθος των οικοδομών συμπεριλαμβανομένης και της κατασκευής των θεμελίων αυτών, εκατέρωθεν του άξονα της σήραγγας της Λεωφόρου Κύμης κατά τμήματα αυτής, που εμπίπτουν εντός του εγκεκριμένου ρυμοτομικού σχεδίου των δήμων Πεύκης και Λυκόβρυσης νομού Αττικής, όπως τα τμήματα αυτά και τα μέγιστα επιτρεπόμενα βάθη αναφέρονται στον παρακάτω πίνακα και φαίνονται στα 2 σχετικά πρωτότυπα διαγράμματα σε κλίμακα 1:500 και στα 2 σχέδια μηκοτομών σε κλίμακα 1:500/1:100, που θεωρήθηκαν από τον προϊστάμενο της Διεύθυνσης Τοπογραφικών Εφαρμογών με την 3727/1999 πράξη του και που αντίτυπό τους σε φωτοσμίκρυνση δημοσιεύονται με το παρόν διάταγμα.
Πίνακας
Από
|
Έως
|
Πλάτος εκατέρωθεν του κέντρου άξονα Λεωφόρου Κύμης
|
Μέγιστο επιτρεπόμενο βάθος
|
Λεωφόρο Ειρήνης
|
ΧΘ 1+000
|
60.00 m
|
20.00 m
|
ΧΘ 1+000
|
ΧΘ 1+150
|
55.00 m
|
15.00 m
|
ΧΘ 1+150
|
ΧΘ 1+200
|
50.00 m
|
10.00 m
|
ΧΘ 1+200
|
ΧΘ 1+250
|
47.50 m
|
7.00 m
|
ΧΘ 1+250
|
ΧΘ 1+300
|
45.00 m
|
5.00 m
|
ΧΘ 1+300
|
οδό Αθανασίου Διάκου (μεταξύ οικοδομικών τετραγώνων 147 και 148 Δήμου Λυκόβρυσης)
|
45.00 m
|
2.50 m
|
2. Τα παραπάνω καθοριζόμενα βάθη μετρούνται από το γύρω φυσικό έδαφος, όπως αυτό φαίνεται με την ένδειξη υψόμετρα εδάφους στα σχετικά σχέδια μηκοτομών της προηγούμενης παραγράφου.
