Προεδρικό διάταγμα 19/10/11c - Άρθρο 1

Άρθρο 1


Συνδεθείτε στην Υπηρεσία Νομοσκόπιο
Είσοδος στην υπηρεσία Νομοσκόπιο.
   
Χρήστης
Κωδικός
  Υπενθύμιση στοιχείων λογαριασμού
   
 
Νέοι χρήστες
Εάν είστε νέος χρήστης, θα πρέπει να δημιουργήσετε ένα ΔΩΡΕΑΝ λογαριασμό προκειμένου να φύγει το παράθυρο αυτό και να αποκτήσετε πλήρη πρόσβαση στην υπηρεσία Νομοσκόπιο.
Δημιουργία νέου λογαριασμού

 

 

Εγκρίνεται:

 

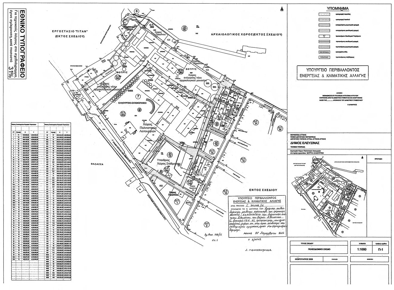
α) Το πολεοδομικό σχέδιο στην περιοχή ΒΟΤΡΥΣ ΕΛΑΙΟΥΡΓΕΙΟ στην πολεοδομική ενότητα 3 (Π.Ε. 3) της δημοτικής ενότητας Ελευσίνας του Δήμου Ελευσίνας (νομού Αττικής) με τον καθορισμό οικοδομήσιμων χώρων (οικοδομικά τετράγωνα 14,15, 32, 32Α), πεζοδρόμων, χώρου πολιτιστικών λειτουργιών και αρχαιολογικού μουσείου (οικοδομικό τετράγωνο 363), χώρου πολιτιστικών λειτουργιών, (οικοδομικό τετράγωνο 362), υπαίθριου χώρου στάθμευσης (οικοδομικό τετράγωνο 14Α), Κ.Χ. χώρων πρασίνου (οικοδομικά τετράγωνα 360, 361, 14Β).

 

β) Η τροποποίηση του εγκεκριμένου ρυμοτομικού σχεδίου του ίδιου ως άνω δήμου με την κατάργηση και μετατόπιση των ρυμοτομικών και οικοδομικών γραμμών στα όρια σύνδεσης με την παραπάνω περιοχή επέκτασης,

 

όπως οι ρυθμίσεις αυτές φαίνονται στο σχετικό πρωτότυπο διάγραμμα σε κλίμακα 1:1000, που θεωρήθηκε από τον Προϊστάμενο της Διεύθυνσης Τοπογραφικών Εφαρμογών με την αριθμόν 34046/2011 πράξη του και που αντίτυπό του σε φωτοσμίκρυνση δημοσιεύεται με το παρόν διάταγμα.

 

pd.19.10.11c

ΣΗΜΕΙΩΣΗ: Το παρόν άρθρο τίθεται όπως τροποποιήθηκε με την παράγραφο 3 του άρθρου 99 του νόμου 4685/2020 (ΦΕΚ 92/Α/2020).

 



Copyright © 2020 TechnoLogismiki. Με την επιφύλαξη παντός δικαιώματος.