| Συνδεθείτε στην Υπηρεσία Νομοσκόπιο | | | | | Νέοι χρήστες | | Εάν είστε νέος χρήστης, θα πρέπει να δημιουργήσετε ένα ΔΩΡΕΑΝ λογαριασμό προκειμένου να φύγει το παράθυρο αυτό και να αποκτήσετε πλήρη πρόσβαση στην υπηρεσία Νομοσκόπιο. | | Δημιουργία νέου λογαριασμού | | |
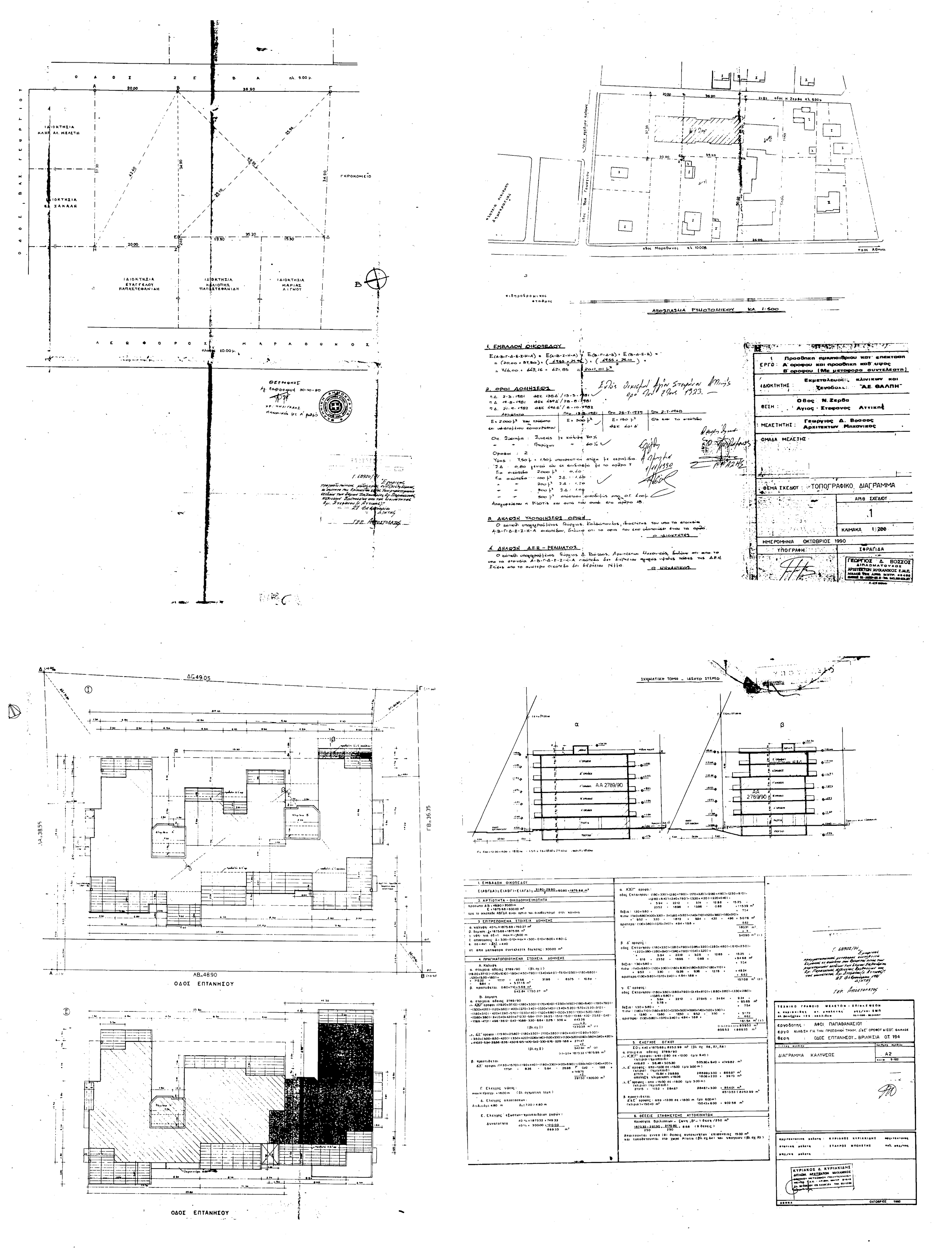
1. Εγκρίνεται η πραγματοποίηση μέρους της μεταφοράς συντελεστή δόμησης, που εγκρίθηκε με το από 27-02-1991 προεδρικό διάταγμα (ΦΕΚ 117/Δ/1991) από το βαρυνόμενο (ρυμοτομούμενο) ακίνητο που βρίσκεται εντός του ρυμοτομικού σχεδίου του δήμου Αμαρουσίου (νομού Αττικής) και επί του οικοδομικού τετραγώνου 497Α και για το οποίο έχει εκδοθεί ο 2356/1991 τίτλος δικαιώματος μεταφοράς συντελεστή δόμησης στο όνομα Εμμανουήλ, Ελευθερίου, Κωνσταντίνου και Θεοδώρας Σμαΐλου σε άλλο ακίνητο (ωφελούμενο), που βρίσκεται εντός του ρυμοτομικού σχεδίου δήμου Βριλησσίων (νομού Αττικής) και επί της οδού Επτανήσου και επί του οικοδομικού τετραγώνου 194, φερόμενο ως ιδιοκτησία των Κωνσταντίνου, Θεοφάνους, Παρασκευής, Θωμά, Κατίνας και Αντωνίου Παπαθανασίου, όπως το ωφελούμενο φαίνεται με στοιχεία Α, Β, Γ, Δ, Α στο σχετικό πρωτότυπο διάγραμμα σε κλίμακα 1:500 που θεωρήθηκε από τον Προϊστάμενο της Διεύθυνσης Τοπογραφικών Εφαρμογών με την 68920/1991 πράξη του και που αντίτυπό του σε φωτοσμίκρυνση δημοσιεύεται με το παρόν διάταγμα.
2. Τα ειδικότερα στοιχεία πραγματοποίησης της μεταφοράς συντελεστή δόμησης είναι τα εξής: Συνολική επιφάνεια η οποία δύναται να δομηθεί στο ωφελούμενο ακίνητο επιπλέον της επιτρεπομένης βάσει των ισχυόντων στην περιοχή όρων δόμησης 297,50 m2, που αντιστοιχεί σε 59,46 m2 του βαρυνομένου ακινήτου.
3. Τα ειδικότερα στοιχεία του ωφελουμένου ακινήτου μετά τη μεταφορά είναι τα εξής:
α) Εμβαδόν οικοπέδου: 1.875,68 m2
β) Ποσοστό κάλυψης: 40%
γ) Συντελεστής δόμησης: 1,1586
δ) Μέγιστο επιτρεπόμενο ύψος: 18 m.
ε) Το κτίριο πρέπει να ανεγερθεί εντός του ωφελουμένου ακινήτου σύμφωνα με το διάγραμμα κάλυψης σε κλίμακα 1:100, που θεωρήθηκε από τον Προϊστάμενο της Διεύθυνσης Τοπογραφικών Εφαρμογών με την 68920/1991 πράξη του και που αντίτυπό του σε φωτοσμίκρυνση δημοσιεύεται με το παρόν διάταγμα.
