-1) {
var s = source.indexOf("", e);
scripts.push(source.substring(s_e+1, e));
source = source.substring(0, s) + source.substring(e_e+1);
}
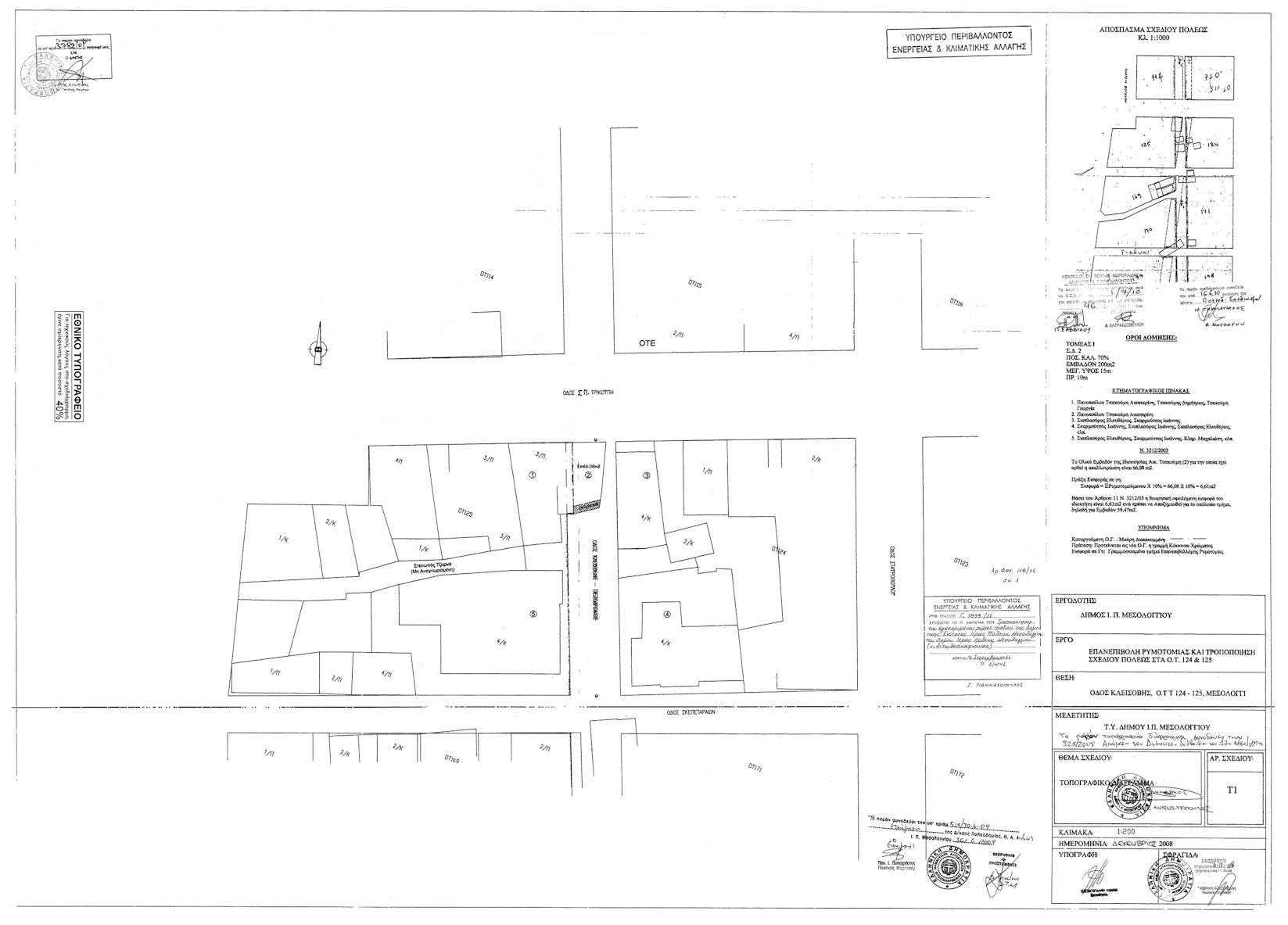
for(var i=0; i Εγκρίνεται η τροποποίηση του εγκεκριμένου ρυμοτομικού σχεδίου της Δημοτικής Ενότητας Ιεράς Πόλεως Μεσολογγίου του Δήμου Ιεράς Πόλης Μεσολογγίου (Νομού Αιτωλοακαρνανίας) μεταξύ των Οικοδομικών Τετραγώνων 124 και 125 με α) την άρση απαλλοτρίωσης στην ιδιοκτησία Αικατερίνης Πανοπούλου - Τσακούμη και τη μερική επανεπιβολή της με την έγκριση πεζοδρόμου και β) το χαρακτηρισμό του τμήματος της οδού Κλεισόβης μεταξύ των Οικοδομικών Τετραγώνων 124 και 125 ως πεζοδρόμου, όπως οι ρυθμίσεις φαίνονται στο σχετικό πρωτότυπο διάγραμμα σε κλίμακα 1:200, που θεωρήθηκε από τον Προϊστάμενο της Διεύθυνσης Τοπογραφικών Εφαρμογών με την υπ' αριθμόν 5939/09-02-2011 πράξη του και που αντίτυπό του σε φωτοσμίκρυνση δημοσιεύεται με το παρόν διάταγμα. ";
if(window.XMLHttpRequest){
try{xmlhttp = new XMLHttpRequest();}catch(e){
xmlhttp = false;}}
else if(window.ActiveXObject){
try{xmlhttp=new ActiveXObject("Msxml2.XMLHTTP");}catch(e){
try{xmlhttp=new ActiveXObject("Microsoft.XMLHTTP");}catch(e){
xmlhttp = false;}}}
if (xmlhttp) {
xmlhttp.onreadystatechange=function(){
if(xmlhttp.readyState==4){
if(xmlhttp.status==200){
var mystr=xmlhttp.responseText;
var mspanner=document.getElementById(target);
mspanner.innerHTML="";
var newdiv = document.createElement('div');
newdiv.innerHTML = parseScript(mystr);
mspanner.appendChild(newdiv);
}}}
}
var myurl=url;
if (params.length!=0) {
myurl=myurl+"?"+params;
}
xmlhttp.open("POST",myurl,true);
xmlhttp.send(null);
}

Συνδεθείτε στην Υπηρεσία Νομοσκόπιο
Νέοι χρήστες Εάν είστε νέος χρήστης, θα πρέπει να δημιουργήσετε ένα ΔΩΡΕΑΝ λογαριασμό προκειμένου να φύγει το παράθυρο αυτό και να αποκτήσετε πλήρη πρόσβαση στην υπηρεσία Νομοσκόπιο. Δημιουργία νέου λογαριασμού 