Προεδρικό διάταγμα 25/7/08c - Άρθρο 1

Άρθρο 1


Συνδεθείτε στην Υπηρεσία Νομοσκόπιο
Είσοδος στην υπηρεσία Νομοσκόπιο.
   
Χρήστης
Κωδικός
  Υπενθύμιση στοιχείων λογαριασμού
   
 
Νέοι χρήστες
Εάν είστε νέος χρήστης, θα πρέπει να δημιουργήσετε ένα ΔΩΡΕΑΝ λογαριασμό προκειμένου να φύγει το παράθυρο αυτό και να αποκτήσετε πλήρη πρόσβαση στην υπηρεσία Νομοσκόπιο.
Δημιουργία νέου λογαριασμού

 

 

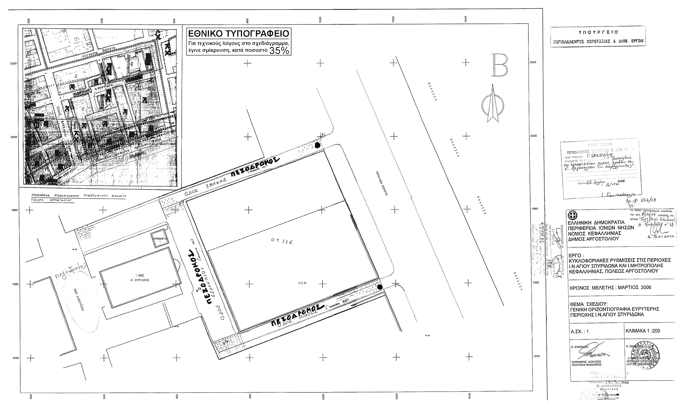
Εγκρίνεται η τροποποίηση του εγκεκριμένου ρυμοτομικού σχεδίου του Δήμου Αργοστολίου (νομού Κεφαλληνίας) με το χαρακτηρισμό των οδών Ιθάκης, Μίνωος και Ασκληπιού περιμετρικά του οικοδομικού τετραγώνου 116 ως πεζοδρόμων, όπως φαίνεται στο σχετικό πρωτότυπο διάγραμμα σε κλίμακα 1:200 που θεωρήθηκε από τον Προϊστάμενο της Διεύθυνσης Τοπογραφικών Εφαρμογών με την 28624/2008 πράξη του και που αντίτυπο του σε φωτοσμίκρυνση δημοσιεύεται με το παρόν διάταγμα.

 

pd.25.7.08c



Copyright © 2020 TechnoLogismiki. Με την επιφύλαξη παντός δικαιώματος.