Προεδρικό διάταγμα 28/6/10 - Άρθρο 1

Άρθρο 1


Συνδεθείτε στην Υπηρεσία Νομοσκόπιο
Είσοδος στην υπηρεσία Νομοσκόπιο.
   
Χρήστης
Κωδικός
  Υπενθύμιση στοιχείων λογαριασμού
   
 
Νέοι χρήστες
Εάν είστε νέος χρήστης, θα πρέπει να δημιουργήσετε ένα ΔΩΡΕΑΝ λογαριασμό προκειμένου να φύγει το παράθυρο αυτό και να αποκτήσετε πλήρη πρόσβαση στην υπηρεσία Νομοσκόπιο.
Δημιουργία νέου λογαριασμού

 

 

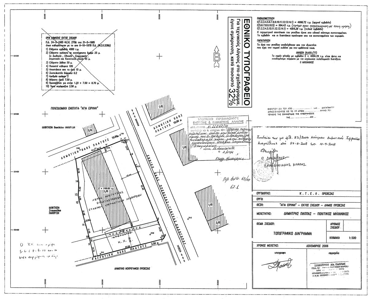
Εγκρίνεται τοπικό ρυμοτομικό σχέδιο στην εκτός σχεδίου περιοχή του Δήμου Πρέβεζας (Νομός Πρέβεζας) για:

 

α) τον καθορισμό χώρου με στοιχεία 1, 2, 3, 4, 5, 10, 11, 12, 13, 14, 1 για την ανέγερση εγκαταστάσεων σταθμού υπεραστικών λεωφορείων και

 

β) τον καθορισμό κοινοχρήστου χώρου και την έγκριση πεζοδρόμου, όπως οι ρυθμίσεις αυτές φαίνονται στο σχετικό πρωτότυπο διάγραμμα σε κλίμακα 1:500 που θεωρήθηκε από τον Προϊστάμενο της Διεύθυνσης Τοπογραφικών Εφαρμογών του Υπουργείου Περιβάλλοντος, Ενέργειας και Κλιματικής Αλλαγής με την αριθμόν 11067/2010 πράξη του και που αντίτυπό του σε φωτοσμίκρυνση δημοσιεύεται με το παρόν διάταγμα.

 

pd.28.6.10



Copyright © 2020 TechnoLogismiki. Με την επιφύλαξη παντός δικαιώματος.