| Συνδεθείτε στην Υπηρεσία Νομοσκόπιο | | | | | Νέοι χρήστες | | Εάν είστε νέος χρήστης, θα πρέπει να δημιουργήσετε ένα ΔΩΡΕΑΝ λογαριασμό προκειμένου να φύγει το παράθυρο αυτό και να αποκτήσετε πλήρη πρόσβαση στην υπηρεσία Νομοσκόπιο. | | Δημιουργία νέου λογαριασμού | | |
5.1. Στόχος
Ο κύριος στόχος του σχεδιασμού των οδεύσεων διαφυγής σε ένα κτίριο είναι η επίτευξη της ασφαλούς εκκένωσης των χρηστών του, σε περίπτωση πυρκαγιάς.
5.2. Γενικά
Η χρήση του κτιρίου και οι ανάγκες των χρηστών του καθορίζουν τον τρόπο σχεδιασμού, τη διαστασιολόγηση, καθώς και τη θέση των οδεύσεων διαφυγής. Οι οδεύσεις διαφυγής πρέπει να παραμένουν ασφαλείς και αποτελεσματικές για τη χρονική διάρκεια που απαιτείται.
Επιπρόσθετα, πρέπει να είναι σαφώς αντιληπτές και προσπελάσιμες απ' όλους τους χρήστες του κτιρίου.
Απαγορεύεται η διέλευση των οδεύσεων διαφυγής από βοηθητικούς χώρους όπως χώρους υγιεινής, αποθήκευσης και ηλεκτρομηχανολογικών εγκαταστάσεων. Οι οδεύσεις διαφυγής δεν πρέπει να είναι σε άμεση γειτνίαση με επικίνδυνους χώρους της κατηγορίας Β (βλέπε 6.7).
Στις περιπτώσεις εσωτερικών χώρων κύριας χρήσης, χώρων δηλαδή για την πρόσβαση στους οποίους προκύπτει μία αποκλειστική οριζόντια διέλευση των χρηστών μέσω άλλου χώρου κύριας χρήσης (χώρου πρόσβασης), θα πρέπει να καλύπτονται σωρευτικά οι εξής απαιτήσεις:
α) O θεωρητικός πληθυσμός τους δεν πρέπει να υπερβαίνει τα 50 άτομα
β) Ο εσωτερικός χώρος δεν πρέπει να είναι υπνοδωμάτιο.
γ) Η επικοινωνία μεταξύ εσωτερικού χώρου και χώρου πρόσβασης να είναι άμεση, χωρίς να παρεμβάλλεται διάδρομος.
δ) Ο εσωτερικός χώρος και ο χώρος πρόσβασης να είναι της αυτής ιδιοκτησίας (Σχήμα 1). Από τις ανωτέρω απαιτήσεις απαλλάσσονται εσωτερικοί χώροι οι οποίοι διαθέτουν περισσότερες της μίας εξόδους (Σχήμα 2).


Οι οδεύσεις διαφυγής αποτελούνται συνήθως από τρία διακριτά και διαδοχικά στάδια: την απροστάτευτη όδευση διαφυγής, την πυροπροστατευμένη όδευση διαφυγής και την οριζόντια όδευση προς την τελική έξοδο (Σχήμα 3).
α) Η απροστάτευτη όδευση διαφυγής είναι το πρώτο στάδιο της όδευσης και αφορά στην πορεία από ένα τυχόν σημείο του κτιρίου μέχρι ένα χώρο ασφαλή, που μπορεί να είναι:
i) μια τελική έξοδος προς υπαίθριο χώρο,
ii) μια έξοδος κινδύνου ορόφου,
iii) μία οριζόντια έξοδος.
Συνήθως η απροστάτευτη όδευση είναι μία οριζόντια διαδρομή. Δύναται όμως να παρεμβάλλεται στην όδευση αυτή απροστάτευτο κλιμακοστάσιο ή υπαίθριο τμήμα, όπως εξωτερικός εξώστης, ανοικτός ημιυπαίθριος χώρος, βατό δώμα ή βεράντα.
β) Η πυροπροστατευμένη όδευση διαφυγής είναι το δεύτερο στάδιο της όδευσης το οποίο άρχεται από μια έξοδο κινδύνου (η οποία είναι η κατάληξη του πρώτου σταδίου της όδευσης) και οδηγεί σε έξοδο στο επίπεδο του ορόφου εκκένωσης. Όλο αυτό το τμήμα είναι πυροπροστατευμένο, περιβάλλεται δηλαδή από δομικά στοιχεία με τον απαιτούμενο δείκτη πυραντίστασης.
Συνήθως το δεύτερο αυτό στάδιο της όδευσης διαφυγής αποτελείται από πυροπροστατευμένα κλιμακοστάσια. Ενίοτε, δύναται να συμπεριλαμβάνει και πυροπροστατευμένους εσωτερικούς ή εξωτερικούς διαδρόμους ή και πυροπροστατευμένους προθαλάμους.
Η θεώρηση κυλιομένων κλιμάκων ή διαδρόμων ως οδεύσεων διαφυγής δεν επιτρέπεται. Όσον αφορά στους ανελκυστήρες, απαγορεύεται η χρήση τους ως οδεύσεων διαφυγής για αποφυγή εγκλωβισμού σε περίπτωση διακοπής ηλεκτρικού ρεύματος.
γ) Η οριζόντια όδευση προς την τελική έξοδο είναι το τρίτο και τελικό στάδιο της όδευσης διαφυγής. Είναι η συνέχεια των πυροπροστατευμένων οδεύσεων από τους υπέργειους ή και υπόγειους ορόφους του κτιρίου που καταλήγουν στον όροφο εκκένωσης με κατεύθυνση την τελική ή τις τελικές εξόδους του. Με το τελικό αυτό στάδιο της όδευσης επιτυγχάνεται η διαφυγή των χρηστών προς το εξωτερικό του κτιρίου, είτε σε περιοχή ελεύθερη και ασφαλή του οικοπέδου - γηπέδου που συνέχεται με κοινόχρηστο δρόμο ή το ύπαιθρο, είτε απ' ευθείας σε κοινόχρηστο χώρο ή το ύπαιθρο.
Η όδευση του τρίτου σταδίου εφ' όσον διέρχεται μέσα από το κτίριο πρέπει να είναι πυροπροστατευμένη και όσο το δυνατόν πιο σύντομη και ευθεία. Κοινόχρηστα κλιμακοστάσια που συνεχίζονται κάτω από τον όροφο εκκένωσης πρέπει να διακόπτονται με κατάλληλα διαχωριστικά στοιχεία (πόρτες), για να μη δημιουργείται σύγχυση, όσον αφορά στην πορεία προς την τελική έξοδο.
Τα διαχωριστικά αυτά στοιχεία δεν θα πρέπει σε καμία περίπτωση να εμποδίζουν την πορεία των χρηστών προς την τελική έξοδο ούτε και να μειώνουν το πλάτος των οδεύσεων διαφυγής.
Οι τελικές έξοδοι, πρέπει να τοποθετούνται σε κατάλληλες θέσεις του ορόφου εκκένωσης, έτσι ώστε η κατεύθυνση διαφυγής προς το ύπαιθρο να είναι σαφής.
Επιπρόσθετα, πρέπει να προστατεύονται εντός και εκτός του κτιρίου από κάθε κίνδυνο που μπορεί να προκληθεί από φλόγες ή καπνούς προερχόμενους από συστήματα εξαερισμού, ηλεκτρομηχανολογικές εγκαταστάσεις, λεβητοστάσια ή άλλους επικίνδυνους χώρους.
Τμήματα της όδευσης αυτού του σταδίου που λαμβάνουν χώρα εκτός του κτιρίου, πρέπει να οδηγούν με ασφάλεια μακριά από αυτό. Στην περίπτωση αυτή, το τμήμα της εξωτερικής τοιχοποιίας του κτιρίου που οριοθετεί την όδευση, θα πρέπει να έχει δείκτη πυραντίστασης τουλάχιστον 30 λεπτών και τυχόν κουφώματα δείκτη πυραντίστασης τουλάχιστον 15 λεπτών.

5.3. Σχεδιασμός οδεύσεων διαφυγής
5.3.1. Θεωρητικός Πληθυσμός
Η παροχή της όδευσης διαφυγής καθορίζεται με βάση την ειδική χρήση του κτιρίου και υπολογίζεται για κάθε όροφο ανάλογα με τον θεωρητικό πληθυσμό του.
Για τον υπολογισμό του θεωρητικού πληθυσμού, λαμβάνονται υπόψη οι τιμές του Πίνακα 3.
Στην περίπτωση διαχωρισμένων χρήσεων, εφαρμόζονται για κάθε ξεχωριστή χρήση οι τιμές του πίνακα που αφορούν στην επιφάνεια που καταλαμβάνει κάθε αυτοτελής χρήση.
Στην περίπτωση ύπαρξης συμπληρωματικών χρήσεων, οι οποίες δεν διαθέτουν πληρότητα, ο υπολογισμός του θεωρητικού πληθυσμού γίνεται με τις απαιτήσεις της κυριαρχούσας χρήσης για το σύνολο της επιφάνειάς της, συμπεριλαμβανομένης και της επιφάνειας των συμπληρωματικών χώρων που την εξυπηρετούν. Κατ' εξαίρεση, είναι αποδεκτός ο υπολογισμός του θεωρητικού πληθυσμού των συμπληρωματικών χώρων με τις τιμές του Πίνακα 3 που αφορούν στην ειδική χρήση τους, εφ' όσον όμως δεν πρόκειται για συμπληρωματικούς χώρους που εξυπηρετούν αυτοτελείς κατοικίες. Σε ειδικά κτίρια, στα οποία υφίστανται χώροι όπως κουζίνες επαγγελματικής χρήσης, παρασκευαστήρια, χώροι υγιεινής κ.λ.π., οι οποίοι δεν μπορούν να ενταχθούν στις χρήσεις του άρθρου 4 του παρόντος, ο μελετητής μπορεί να ορίζει τον μέγιστο θεωρητικό πληθυσμό τους βάσει του πραγματικού ή του εκτιμώμενου ως λογικώς πιθανού, ο οποίος σε κάθε περίπτωση δεν μπορεί να είναι μικρότερος της αναλογίας 1 άτομο / 30 m2
Σε περίπτωση εμπλεκόμενων χρήσεων, ο θεωρητικός πληθυσμός κάθε ορόφου υπολογίζεται από το άθροισμα των πληθυσμών των επιμέρους χρήσεων αναλόγως της επιφάνειας που καταλαμβάνουν.
Πίνακας 3: Υπολογισμός θεωρητικού πληθυσμού ανά χρήση
Θεωρητικός Πληθυσμός
|
Κατηγορία
|
Χρήση
|
Χώροι
|
Άτομα
|
Α
|
Κατοικία
|
|
1 άτομο / 18 m2 δαπέδου
|
Β
|
Προσωρινή Διαμονή
|
|
Ο μεγαλύτερος πληθυσμός από τα δύο: Σ (αριθμός κλινών, μόνιμο προσωπικό), 1 άτομο / 18 m2 δαπέδου
|
Γ
|
Χώροι Συνάθροισης Κοινού *
|
Εστιατόρια, Καφενεία, Ζαχαροπλαστεία, Λέσχες, Αίθουσες Συνεδριάσεων, Μουσεία, Εκθεσιακά Κέντρα, Αποδυτήρια κ.λ.π.
|
1 άτομο / 1,40 m2 δαπέδου
|
Για χώρους με σταθερά καθίσματα: 1 άτομο ανά κάθισμα ή για συνεχή καθίσματα (πάγκους) 1 άτομο ανά 0.45 m μήκους καθίσματος
|
Αμφιθέατρα, Χώροι Συναυλιών - Διαλέξεων - Διδασκαλίας, Δικαστήρια, Θέατρα, Κινηματογράφοι, Αθλητικών Εκδηλώσεων, Ναοί, Κέντρα Διασκέδασης, BAR
|
1 άτομο / 0,65 m2 δαπέδου
|
Για χώρους με σταθερά καθίσματα: 1 άτομο ανά κάθισμα ή για συνεχή καθίσματα (πάγκους) 1 άτομο ανά 0.45 m μήκους καθίσματος
|
Αναμονής Συγκοινωνιακών Μέσων, Συνάθροισης όρθιων
|
1 άτομο / 0,30 m2 δαπέδου
|
Γυμναστικής με όργανα
|
1 άτομο / 5 m2 δαπέδου
|
Γυμναστικής χωρίς όργανα
|
1 άτομο / 1,40 m2 δαπέδου
|
Αγωνιστικοί χώροι
|
1 άτομο / 40 m2 δαπέδου
|
Δεξαμενών Κολύμβησης
|
1 άτομο / 5 m2 επιφάνειας νερού
|
Περιβάλλων χώρος Κολυμβητικών Δεξαμενών
|
1 άτομο / 3 m2 δαπέδου
|
Βιβλιοθήκες
|
1 άτομο / 5 m2 δαπέδου
|
Σκηνή Θεάτρου
|
1 άτομο / 1,40 m2 δαπέδου
|
Αεροδρόμια
|
χώροι διακίνησης κοινού
|
1 άτομο / 9 m2 δαπέδου (μικτό εμβαδόν)
|
παραλαβής αποσκευών
|
1 άτομο / 2 m2 δαπέδου (μικτό εμβαδόν)
|
παράδοσης αποσκευών
|
1 άτομο / 1,4 m2 δαπέδου (μικτό εμβαδόν)
|
χώροι αναμονής
|
1 άτομο / 1,4 m2 δαπέδου (μικτό εμβαδόν)
|
Για χώρους με σταθερά καθίσματα: 1 άτομο ανά κάθισμα ή για συνεχή καθίσματα (πάγκους) 1 άτομο ανά 0.45 m μήκους καθίσματος
|
διαχείρισης αποσκευών
|
1 άτομο / 30 m2 δαπέδου (μικτό εμβαδόν)
|
Δ
|
Εκπαίδευση
|
Αίθουσες Διδασκαλίας
|
1 άτομο / 2 m2 δαπέδου
|
Αίθουσες Διδασκαλίας με σταθερά καθίσματα
|
Ο μεγαλύτερος πληθυσμός από: αριθμός καθισμάτων ή 1 άτομο / 2 m2 δαπέδου
|
Εργαστήρια
|
Ο μεγαλύτερος πληθυσμός από: θέσεις εργασίας ή 1 άτομο / 4,5 m2 δαπέδου
|
Υπόλοιποι χώροι (γραφεία, γραμματεία, ιατρείο κ.λ.π.)
|
1 άτομο / 6 m2 δαπέδου
|
Ε
|
Υγεία
|
Μονάδες πρωτοβάθμιας Υγείας
|
διάγνωση και θεραπεία χωρίς νοσηλεία
|
1 άτομο / 9 m2 δαπέδου
|
Τμήματα δευτεροβάθμιας Υγείας
|
θάλαμοι ασθενών
|
1 άτομο / 11 m2 δαπέδου
|
λοιποί χώροι (γραφεία, εργαστήρια, βοηθητικοί χώροι κ.λ.π.)
|
1 άτομο / 22 m2 δαπέδου
|
Κοινωνική Πρόνοια
|
Παιδικοί Σταθμοί, Οίκοι Ευγηρίας
|
1 άτομο / 3 m2 δαπέδου
|
Βοηθητικοί χώροι, Αποθήκες και Η/Μ Εγκαταστάσεις
|
1 άτομο / 30 m2 δαπέδου
|
Ζ
|
Σωφρονισμός
|
|
Ο μεγαλύτερος πληθυσμός από τα δύο: Σ (αριθμός κρατουμένων, αριθμός εργαζομένων, αριθμός επισκευών) ή 1 άτομο /11 m2 δαπέδου
|
Η
|
Εμπόριο
|
Έκθεσης και Πωλήσεων
|
υπόγειο και ισόγειο
|
1 άτομο / 3 m2 δαπέδου
|
όροφοι άνω του ισογείου
|
1 άτομο / 6 m2 δαπέδου
|
Γραφεία
|
1 άτομο / 10 m2 δαπέδου
|
Κυλικεία - Εστιατόρια
|
1 άτομο / 1,40 m2 δαπέδου
|
Διάδρομοι Κυκλοφορίας Εμπορικών Κέντρων
|
1 άτομο / 1,40 m2 δαπέδου
|
Αποθήκευσης, Χώροι χωρίς κοινό και Στάθμευσης αυτοκινήτων έως 10 θέσεις
|
1 άτομο / 30 m2 δαπέδου
|
Θ
|
Γραφεία
|
Γραφεία ≤ 50 m2
|
1 άτομο / 9 m2 δαπέδου
|
Ενιαίες Αίθουσες Γραφείων > 50 m2
|
1 άτομο / 5 m2 δαπέδου
|
Χώροι αναμονής και υποδοχής επισκεπτών
|
1 άτομο / 3 m2 δαπέδου
|
Ι
|
Βιομηχανία - Βιοτεχνία
|
Βιομηχανίας - Βιοτεχνίας
|
1 άτομο / 10 m2 δαπέδου
|
Βιομηχανίας - Βιοτεχνίας προοριζόμενη για συγκεκριμένη λειτουργία
|
Προβλεπόμενος αριθμός χρηστών (εργαζόμενοι και πιθανοί επισκέπτες)
|
Κ
|
Αποθήκευση
|
Εμπορίου (κέντρα αποθήκευσης και διανομής - αποθήκευσης)
|
1 άτομο / 30 m2 δαπέδου
|
Απλή Αποθήκευση
|
1 άτομο / 50 m2 δαπέδου
|
Λ
|
Στάθμευση και πρατήρια υγρών καυσίμων
|
Για Δημόσιους χώρους στάθμευσης
|
2 άτομα / 1 θέση αυτοκινήτου, 1 άτομο / δίκυκλο
|
Για Ιδιωτικούς χώρους στάθμευσης
|
1 άτομο / 1 θέση αυτοκινήτου, 1 άτομο / δίκυκλο
|
Πρατήρια καυσίμων - Πλυντήρια Αυτοκινήτων
|
1 άτομο / 6 m2 δαπέδου
|
Σημείωση:
Γενικά: Ως δάπεδο λαμβάνεται υπόψη το καθαρό εμβαδόν δαπέδου, αφαιρουμένων των σταθερών επίπλων ή και εκθεμάτων, με εξαίρεση τα αεροδρόμια για τα οποία λαμβάνεται το μικτό εμβαδόν.
* Οι επιφάνειες των χώρων συνάθροισης κοινού περιλαμβάνουν χώρους που προορίζονται μόνο για τη συγκεκριμένη χρήση.
|
5.3.2. Παροχή όδευσης διαφυγής
Η παροχή της όδευσης διαφυγής καθορίζεται με βάση την ειδική χρήση του κτιρίου και υπολογίζεται για κάθε όροφο ανάλογα με το θεωρητικό πληθυσμό του.
Η παροχή υπολογίζεται για τις οριζόντιες και τις κατακόρυφες οδεύσεις.
Για τις κατακόρυφες οδεύσεις διαφυγής, η παροχή των υπέργειων ορόφων του κτιρίου (άνω του ορόφου εκκένωσης) και των υπόγειων ορόφων αυτού (κάτω του ορόφου εκκένωσης) υπολογίζεται χωριστά.
Γενικά, ο όροφος με το μεγαλύτερο πληθυσμό καθορίζει την απαιτούμενη παροχή των κατακόρυφων οδεύσεων διαφυγής. Σε περίπτωση κτιρίων με περισσότερους των πέντε ορόφων άνω του ορόφου εκκένωσης του κτιρίου, η συνολική απαιτούμενη παροχή της κατακόρυφης υπέργειας όδευσης διαφυγής καθορίζεται από το άθροισμα του πληθυσμού των δύο δυσμενέστερων διαδοχικών ορόφων.
Σε περίπτωση κτιρίων με περισσότερους των δέκα ορόφων άνω του ορόφου εκκένωσης του κτιρίου, η συνολική απαιτούμενη παροχή της κατακόρυφης υπέργειας όδευσης διαφυγής καθορίζεται από το άθροισμα του πληθυσμού των τριών δυσμενέστερων διαδοχικών ορόφων.
Στην περίπτωση που ο όροφος (για κτίρια έως 5 υπέργειους ορόφους) ή οι δύο διαδοχικοί όροφοι (για κτίρια άνω των 5 υπέργειων ορόφων) ή οι τρεις διαδοχικοί όροφοι (για κτίρια άνω των 10 υπέργειων ορόφων) με τη μεγαλύτερη παροχή, δεν είναι ο ανώτατος ή οι ανώτατοι όροφοι του κτιρίου αντίστοιχα, η εξασφάλιση της απαιτούμενης κατακόρυφης παροχής που υπολογίζεται βάσει των δυσμενέστερων θεωρητικών πληθυσμών τους είναι δυνατόν να εφαρμόζεται μόνον για το τμήμα της κατακόρυφης όδευσης από το δυσμενέστερο αυτόν πληθυσμιακά όροφο ή ορόφους έως τον όροφο εκκένωσης του κτιρίου. Άνωθεν του ή των ορόφων που έχουν καθορίσει την απαιτούμενη κατακόρυφη παροχή, υπολογίζονται για κάθε όροφο οι ελάχιστες απαιτούμενες κατακόρυφες παροχές και επιλέγεται το απαιτούμενο κατά περίπτωση πλάτος κατακόρυφης όδευσης, έτσι ώστε να καλύπτει τις απαιτήσεις διαφυγής κάθε ορόφου, αλλά σε καμία περίπτωση να μην μειώνεται στην πορεία προς την τελική έξοδο (Σχήμα 4).

Για τον υπολογισμό της παροχής εφαρμόζονται κατά περίπτωση τα εξής:
| • | Στην περίπτωση χρήσεων οι οποίες εξυπηρετούνται και από άλλες συμπληρωματικές χρήσεις, η παροχή ορόφου προκύπτει από το άθροισμα των πληθυσμών της κυριαρχούσας και των συμπληρωματικών χρήσεων, αλλά υπολογίζεται σύμφωνα με τους συντελεστές του πίνακα 4 που ισχύουν για την κυριαρχούσα χρήση. Εφ' όσον η συμπληρωματική χρήση διαθέτει πληρότητα, η οριζόντια παροχή της στο τμήμα που καταλαμβάνει η συγκεκριμένη χρήση, υπολογίζεται βάσει των σχετικών απαιτήσεων του πίνακα 4. Η συνολική παροχή του υπόλοιπου ορόφου προκύπτει από το άθροισμα των επιμέρους θεωρητικών πληθυσμών και υπολογίζεται κατά το προηγούμενο εδάφιο σύμφωνα με τους συντελεστές του πίνακα 4 που ισχύουν για την κυριαρχούσα χρήση. |
| • | Στην περίπτωση διαχωρισμένων χρήσεων, εφαρμόζονται για κάθε ξεχωριστή χρήση οι απαιτούμενες παροχές του πίνακα 4, όπως προκύπτουν βάσει του θεωρητικού πληθυσμού τους. |
| • | Στην περίπτωση εμπλεκόμενων χρήσεων, η παροχή κάθε ορόφου στο σύνολο της επιφανείας του, υπολογίζεται με χρήση των δυσμενέστερων συντελεστών του πίνακα 4 για τις εγκατεστημένες χρήσεις. |
Πίνακας 4: Υπολογισμός παροχής οδεύσεων διαφυγής ανά μονάδα πλάτους (0.6 m)
Κατηγορία
|
Χρήση
|
Οριζόντιες οδεύσεις (άτομα)
|
Κατακόρυφες οδεύσεις (άτομα)
|
Α
|
Κατοικία
|
100
|
60
|
Β
|
Προσωρινή Διαμονή
|
υπέργειοι όροφοι
|
100
|
60
|
υπόγεια
|
|
30
|
Γ
|
Χώροι Συνάθροισης Κοινού
|
υπέργειοι όροφοι
|
100
|
60
|
υπόγεια
|
50
|
30
|
Δ
|
Εκπαίδευση
|
υπέργειοι όροφοι
|
100
|
60
|
υπόγεια
|
50
|
30
|
Ε
|
Υγεία και Κοινωνική Πρόνοια
|
50
|
30
|
Ζ
|
Σωφρονισμός
|
100
|
60
|
Η
|
Εμπόριο
|
υπέργειοι όροφοι
|
100
|
60
|
υπόγεια
|
50
|
30
|
Θ
|
Γραφεία
|
100
|
60
|
Ι
|
Βιομηχανία - Βιοτεχνία
|
100
|
60
|
κ
|
Αποθήκευση
|
100
|
60
|
Λ
|
Στάθμευση - Πρατήρια υγρών καυσίμων
|
100
|
60
|
5.3.3. Πλάτος και ύψος όδευσης διαφυγής
Ως πλάτος της όδευσης διαφυγής ορίζεται το ελεύθερο πλάτος στο στενότερο σημείο της και μέχρι ύψους 2.2 m.
Η μονάδα πλάτους της όδευσης διαφυγής ορίζεται σε 0.6 m.
Το απαιτούμενο ελάχιστο πλάτος οποιασδήποτε όδευσης διαφυγής δεν επιτρέπεται να είναι μικρότερο του 0.7 m.
Το απαιτούμενο πλάτος της όδευσης διαφυγής δεν επιτρέπεται να μειώνεται, σε καμία περίπτωση στην πορεία προς την τελική έξοδο και για όλα τα στάδια, υπολογίζεται σε συνάρτηση με το θεωρητικό πληθυσμό και την ειδική χρήση του κτιρίου, εκφραζόμενο σε ακέραιες μονάδες πλάτους (0.6 m). Όταν από τους υπολογισμούς προκύπτει μη ακέραιος αριθμός, τότε η στρογγυλοποίηση γίνεται προς τα άνω, με την προσθήκη μισής μονάδας πλάτους (0.3 m).
Το ελεύθερο ύψος των χώρων, όπου περνά όδευση διαφυγής, πρέπει να είναι τουλάχιστον 2.2 m, ενώ για τις σκάλες, δοκούς, ανώφλια θυρών μπορεί να είναι 2 m.
Περιοχές που παρουσιάζουν υψομετρικές διαφορές δαπέδου μέχρι 0.4 m και συνδέονται μέσω σκαλοπατιών ή ραμπών μπορούν να συμπεριλαμβάνονται στις οριζόντιες οδεύσεις διαφυγής.
5.3.4. Μήκος όδευσης διαφυγής
Το μήκος της όδευσης διαφυγής εξετάζεται μόνον για τα απροστάτευτα τμήματα αυτής, θεωρώντας ότι τα πυροπροστατευμένα τμήματα, ως ασφαλή, δεν έχουν όριο επιτρεπόμενου μήκους.
Το μήκος απροστάτευτης απόστασης όδευσης που εξετάζεται, είναι η πραγματική απόσταση. Κάθε σημείο της κάτοψης θα πρέπει να πληροί την ελάχιστη καθοριζόμενη απόσταση από την πλησιέστερη έξοδο κινδύνου.
Οι αποστάσεις απροστάτευτης όδευσης στους κοινόχρηστους διαδρόμους μετρώνται κατά μήκος της αξονικής γραμμής στο μέσο του πλάτους του διαδρόμου. Στην περίπτωση απροστάτευτων κλιμάκων, το μετρούμενο μήκος επί της γραμμής ανάβασης της κλίμακας υπολογίζεται προσαυξημένο κατά 50%.
Τα μέγιστα, κατά περίπτωση, επιτρεπόμενα μήκη των παραπάνω πραγματικών αποστάσεων διαφυγής καθώς και τυχόν αδιεξόδων (Σχήμα 5) καθορίζονται στον Πίνακα 5 ανάλογα με τη χρήση του κτιρίου σε συνάρτηση και με τη δυνατότητα διαφυγής των χρηστών, προς μία, ή περισσότερες κατευθύνσεις - εξόδους κινδύνου.
Η θεώρηση του αριθμού των κατευθύνσεων δεν αντιστοιχεί στον αριθμό των εξόδων κινδύνου προς πυροπροστατευμένες οδεύσεις διαφυγής που υπάρχουν στον όροφο. Ακόμη και στην περίπτωση που υπάρχουν περισσότερες της μιας έξοδοι κινδύνου, θεωρείται ότι υπάρχει μία μόνο κατεύθυνση διαφυγής όταν από τυχόν σημεία του ορόφου η όδευση προσπερνά την πλησιέστερη έξοδο κινδύνου για να προσεγγίσει την εναλλακτική έξοδο (Σχήμα 6).
Στις Ειδικές Διατάξεις δύναται να καθορίζονται επίσης, επιπλέον του μεγίστου επιτρεπόμενου μήκους απροστάτευτων οδεύσεων διαφυγής και των αδιεξόδων, πρόσθετες απαιτήσεις μήκους του πλέον απομακρυσμένου σημείου ενός χώρου του κτιρίου έως την πλησιέστερη έξοδο σε κοινόχρηστο διάδρομο.
Στην περίπτωση που η απροστάτευτη όδευση διαφυγής διέρχεται μέσα από υπαίθριους χώρους (εξωτερικό εξώστη, ανοικτό ημιυπαίθριο χώρο, βατό δώμα ή βεράντα) για να καταλήξει εκ νέου στο εσωτερικό του κτιρίου, το μήκος του εξωτερικού αυτού τμήματος της όδευσης δεν επιτρέπεται να υπερβαίνει το 1/2 του συνολικού επιτρεπόμενου μήκους απροστάτευτης όδευσης και δεν θα πρέπει να δημιουργούνται αδιέξοδα.
Στην περίπτωση που η απροστάτευτη όδευση διαφυγής, διέρχεται μέσα από υπαίθριο χώρο του κτιρίου (εξωτερικό εξώστη, ανοικτό ημιυπαίθριο χώρο, βατό δώμα ή βεράντα) αλλά από τον υπαίθριο αυτό χώρο καταλήγει απ' ευθείας στη στάθμη εκκένωσης, που οδηγεί σε μία οδό ή σε ανοικτό χώρο ασφαλή από φωτιά και καπνό, τότε κατά τον υπολογισμό του μήκους απροστάτευτης απόστασης, ως μήκος του υπαίθριου τμήματος λαμβάνεται το ήμισυ του πραγματικού μήκους μετρούμενου από την έξοδο του κτιρίου στον υπαίθριο χώρο έως τη στάθμη εκκένωσης.
Στα υφιστάμενα κτίρια, τα οποία εμπίπτουν στο πεδίο εφαρμογής του παρόντος κανονισμού (βλέπε Πίνακα 1) και στα οποία είναι αδύνατη η συμμόρφωση με τις τιμές του Πίνακα 5:
α) το μέγιστο μήκος οριζόντιας όδευσης μη περιλαμβανομένων τυχόν αδιέξοδων τμημάτων, επιτρέπεται να υπολογίζεται στα 2/3 επί της οριζόμενης τιμής εφόσον όλες οι πόρτες του ορόφου είναι αυτοκλειόμενες και επιπροσθέτως, τοποθετούνται ενδιάμεσες πυράντοχες πόρτες που διαθέτουν διαφανή υαλοπίνακα (vision panel), με δείκτη πυραντίστασης τουλάχιστον 30 min, ανά διαστήματα που δεν υπερβαίνουν το ήμισυ των τιμών του Πίνακα 5 (Σχήμα 7),
β) οι πόρτες χώρων που ανοίγουν σε αδιέξοδα με μήκος μεγαλύτερο του ελαχίστου επιτρεπομένου βάσει του Πίνακα 5 πρέπει να είναι αυτοκλειόμενες,
γ) στα αδιέξοδα που υπερβαίνουν το μέγιστο επιτρεπόμενο μήκος του Πίνακα 5, απαιτείται να τοποθετούνται ενδιάμεσες πυράντοχες πόρτες που διαθέτουν διαφανή υαλοπίνακα (vision panel), με φορά ανοίγματος προς την κατεύθυνση όδευσης και δείκτη πυραντίστασης τουλάχιστον 30 min, ώστε τα ενδιάμεσα σε αυτές τμήματα να πληρούν την απαίτηση μήκους αδιεξόδων του παρόντος κανονισμού.


Πίνακας 5: Όρια μήκους πραγματικής απροστάτευτης όδευσης ανά κατηγορία χρήσης κτιρίου (σε m)
Κατηγορία χρήσης κτιρίου
|
Μία κατεύθυνση
|
Περισσότερες κατευθύνσεις
|
Αδιέξοδα
|
Α
|
Κατοικία
|
Μονοκατοικίες
|
25
|
35
|
12
|
Πολυκατοικίες
|
18
|
35
|
9
|
Β
|
Προσωρινή Διαμονή
|
18
|
35
|
9
|
Γ
|
Χώροι Συνάθροισης Κοινού
|
Με σταθερά καθίσματα
|
15
|
32
|
9
|
Χωρίς σταθερά καθίσματα
|
18
|
45
|
9
|
Δ
|
Εκπαίδευση
|
18
|
35
|
9
|
Ε
|
Υγεία και Κοινωνική Πρόνοια
|
15
|
35
|
9
|
Ζ
|
Σωφρονισμός
|
15
|
35
|
9
|
Η
|
Εμπόριο
|
18
|
45
|
9
|
Θ
|
Γραφεία
|
18
|
45
|
9
|
Ι
|
Βιομηχανία - Βιοτεχνία
|
Μικρού και μεσαίου βαθμού κινδύνου (Ζ1, Ζ2)
|
251
|
451
|
15
|
Υψηλού βαθμού κινδύνου (Ζ3)
|
122
|
252
|
0
|
Κ
|
Αποθήκευση
|
|
|
|
|
Μικρού και μεσαίου βαθμού κινδύνου (Ζ1, Ζ2)
|
251
|
451
|
15
|
|
Υψηλού βαθμού κινδύνου (Ζ3)
|
122
|
252
|
0
|
Λ
|
Στάθμευση και πρατήρια υγρών καυσίμων
|
15
|
45
|
9
|
1: Στην περίπτωση εγκατάστασης αυτόματου συστήματος πυρόσβεσης με νερό (καταιονισμού ύδατος) το όριο του μήκους διπλασιάζεται.
2: Στην περίπτωση εγκατάστασης αυτόματου συστήματος πυρόσβεσης με νερό (καταιονισμού ύδατος) το όριο του μήκους πολλαπλασιάζεται επί 1,5.

5.3.5. Αριθμός, θέσεις και θύρες εξόδων κινδύνου
Γενικά, σε κάθε όροφο με πληθυσμό άνω των 50 ατόμων, απαιτούνται δύο τουλάχιστον εναλλακτικές έξοδοι κινδύνου.
Οι έξοδοι κινδύνου από κάθε σημείο του χώρου πρέπει να τοποθετούνται σε θέσεις σαφώς αντιληπτές από τους χρήστες.
Εφόσον απαιτούνται 2 ή περισσότερες έξοδοι κινδύνου, τα πλησιέστερα άκρα τους πρέπει να απέχουν μεταξύ τους τουλάχιστον το 1/2 της μέγιστης διαγώνιας διάστασης (D) του χώρου ή του κτιρίου που εξυπηρετούν (Σχήμα 8 και 9).
Εφόσον απαιτούνται 3 ή περισσότερες έξοδοι κινδύνου, η θέση τουλάχιστον 2 εξ' αυτών, πρέπει να ικανοποιεί τα παραπάνω κριτήρια.
Οι πόρτες των εξόδων κινδύνου πρέπει να ανοίγουν υποχρεωτικά προς την κατεύθυνση της όδευσης διαφυγής, όταν στον χώρο ή στην εξυπηρετούμενη περιοχή του κτιρίου αντιστοιχεί πληθυσμός μεγαλύτερος από 50 άτομα ή όταν ο χώρος ή η περιοχή παρουσιάζει υψηλό βαθμό κινδύνου.
Το καθαρό άνοιγμα των θυρών των εξόδων κινδύνου είναι τουλάχιστον 0.9 m.
Οι έξοδοι κινδύνου όπου καταλήγει το απροστάτευτο στάδιο διαφυγής, οδηγούν συνήθως σε αντίστοιχο αριθμό πυροπροστατευμένων κλιμακοστασίων. Ωστόσο, είναι δυνατόν περισσότερες της μίας έξοδοι κινδύνου να οδηγούν στην ίδια πυροπροστατευμένη όδευση διαφυγής, εφ' όσον:
α) η κατακόρυφη όδευση καλύπτει τη συνολική απαιτούμενη παροχή βάσει του πληθυσμού του ορόφου,
β) από τυχόν σημείο της κάτοψης του ορόφου καλύπτονται τα καθοριζόμενα για τη χρήση του χώρου μέγιστα μήκη απροστάτευτων αποστάσεων.
Σε κάθε περίπτωση, εφ' όσον η κατακόρυφη παροχή υπερβαίνει τις τρεις μονάδες πλάτους (1.8 m), τότε επιβάλλεται η κατασκευή επιπρόσθετου κλιμακοστασίου - κατακόρυφης όδευσης διαφυγής.
Κατά τον σχεδιασμό των κτιρίων πρέπει να γίνεται προσπάθεια για κατά το δυνατόν ισοκατανομή του πληθυσμού στα κλιμακοστάσια, με μέγιστη επιτρεπτή απόκλιση κατά τη σύγκριση των διαστάσεων του πλάτους αυτών έως 30%.
Σε κτίρια όπου η υψηλότερη στάθμη δαπέδου χώρου κύριας χρήσης είναι μέχρι 23 m και οι έξοδοι κινδύνου συνδέονται με πυροπροστατευμένο διάδρομο 60 λεπτών, αντί της διαγωνίου, δύναται να λαμβάνεται το μικρότερο μήκος που συνδέει τις εξόδους, μετρούμενο στο μέσο του ενεργού πλάτους διαδρόμου (Σχήμα 10).

Σε κάθε περίπτωση, το πλάτος των εξόδων στον όροφο εκκένωσης όπου απολήγουν οι κατακόρυφες πυροπροστατευμένες οδεύσεις διαφυγής πρέπει να επαρκεί για τις κατακόρυφες παροχές που εξυπηρετούν.
Οριζόντιες έξοδοι επιτρέπεται να υποκαθιστούν μέχρι και τις μισές από τις απαιτούμενες εξόδους κινδύνου, εφ' όσον δεν βρίσκονται σε στάθμη δαπέδου άνω των 23 m.
από τη στάθμη του ορόφου εκκένωσης.
Στην περίπτωση οριζόντιων εξόδων, θα πρέπει επιπρόσθετα των άλλων απαιτήσεων, για τη διασφάλιση της σταδιακής οριζόντιας εκκένωσης του πληθυσμού του ορόφου:
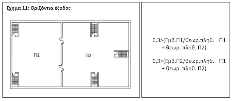
α) το εμβαδόν των πυροδιαμερισμάτων εκατέρωθεν της οριζόντιας εξόδου, εφόσον η οριζόντια έξοδος είναι διπλής κατεύθυνσης, να επαρκεί για το άθροισμα των θεωρητικών πληθυσμών και των δύο πυροδιαμερισμάτων, με ελάχιστο συντελεστή 0,3 m2 / άτομο (Σχήμα 11). Στην περίπτωση οριζόντιας εξόδου μονής κατεύθυνσης, η ανωτέρω απαίτηση θα πρέπει να εξασφαλίζεται στο πυροδιαμέρισμα προς το οποίο οδηγεί η οριζόντια έξοδος.
β) οι υπόλοιπες έξοδοι κινδύνου να οδηγούν σε πυροπροστατευμένες οδεύσεις διαφυγής, στις οποίες δεν επιτρέπεται η χρήση θυρών ελεγχόμενης πρόσβασης περιορισμού πορείας.
γ) ο δείκτης πυραντίστασης του διαχωριστικού τοίχου επί του οποίου βρίσκεται η οριζόντια έξοδος να είναι τουλάχιστον 120 λεπτών χωρίς δυνατότητα μείωσης λόγω εγκατάστασης αυτόματου συστήματος πυρόσβεσης με νερό (καταιονισμού ύδατος).
δ) ο διαχωριστικός τοίχος της οριζόντιας εξόδου δεν μπορεί να υποκαθίσταται από πυράντοχα ρολά ή παρόμοιου τύπου δομικά στοιχεία, ενώ οι θύρες εξόδου θα είναι ΕΙ120 και καπνοστεγείς, επίδοσης Sm σύμφωνα με το ΕΝ13501-2.
ε) δεν επιτρέπεται αγωγοί να διαπερνούν τον τοίχο στον οποίο βρίσκεται η οριζόντια έξοδος.

Σε ειδικά κτίρια, γέφυρες, εξωτερικοί εξώστες ή οποιαδήποτε άλλη έξοδος που οδηγεί από το κτίριο σε άλλο κτίριο ίδιας χρήσης και του ίδιου ιδιοκτήτη, μπορούν να αντικαταστήσουν άλλες απαιτούμενες εξόδους έως 50%, εφ' όσον δεν βρίσκονται σε στάθμη δαπέδου άνω των 23 m από τη στάθμη του ορόφου εκκένωσης και υπό την προϋπόθεση ότι δεν γίνεται χρήση θυρών περιορισμού πορείας - ελέγχου στις υπόλοιπες υποχρεωτικές οδεύσεις διαφυγής.
5.3.6. Τελική έξοδος
Το απαιτούμενο πλάτος της τελικής εξόδου στον όροφο εκκένωσης πρέπει να επαρκεί για την οριζόντια παροχή που απαιτείται για τη διαφυγή του πληθυσμού ο οποίος σε περίπτωση πυρκαγιάς θα συγκεντρωθεί στον εν λόγω όροφο. Δεδομένου όμως ότι εκκένωση του κτιρίου από τους υπέργειους και τους υπόγειους ορόφους γίνεται σταδιακά, το απαιτούμενο πλάτος της τελικής εξόδου υπολογίζεται ως το άθροισμα:
α) του πλάτους της απαιτούμενης κατακόρυφης παροχής από υπερκείμενους ορόφους,
β) του πλάτους της απαιτούμενης κατακόρυφης παροχής από υποκείμενους ορόφους,
γ) του πλάτους της οριζόντιας παροχής του ορόφου εκκένωσης όπως προκύπτουν πριν τη στρογγυλοποίησή τους σε ακέραιες μονάδες πλάτους. Στρογγυλοποίηση θα εφαρμόζεται στη συνέχεια, μόνον για τον καθορισμό του πλάτους της τελικής εξόδου.
Όταν το άθροισμα α+β+γ είναι μεγαλύτερο των δύο μονάδων πλάτους, για τον υπολογισμό του πλάτος της τελικής εξόδου λαμβάνεται η απαιτούμενη κατακόρυφη παροχή (α) από υπέργειους ορόφους προσαυξημένη κατά 25%.
Στην περίπτωση που από τον σχεδιασμό του κτιρίου προβλέπεται ότι οι υπέργειοι ή οι υπόγειοι όροφοι εκκενώνονται μέσω πυροπροστατευμένων οδεύσεων διαφυγής απ' ευθείας σε ασφαλή χώρο εκτός του κτιρίου με ανεξάρτητες τελικές εξόδους που δεν επικοινωνούν με το υπόλοιπο κτίριο και διασφαλίζουν τα απαιτούμενα πλάτη των κατακόρυφων παροχών, οι παροχές τους δεν συνυπολογίζονται στον καθορισμό του ελάχιστου πλάτους των τελικών εξόδων στον όροφο εκκένωσης του τρίτου σταδίου διαφυγής (οριζόντια όδευση προς την τελική έξοδο). Στην περίπτωση που υπό τις ανωτέρω προϋποθέσεις, υπάρχει όμως δυνατότητα επικοινωνίας του χώρου όπου καταλήγουν οι πυροπροστατευμένες κατακόρυφες οδεύσεις διαφυγής στον όροφο εκκένωσης, με χώρο ή χώρους του ορόφου αυτού, που διαθέτουν και δικές τους εξόδους, τότε για τον υπολογισμό του πλάτους των τελικών εξόδων του ορόφου εκκένωσης λαμβάνεται υπόψη και το ήμισυ των απαιτούμενων κατακόρυφων παροχών από τους υπέργειους και υπόγειους ορόφους του κτιρίου.
Σε κάθε περίπτωση, το πλάτος των εξόδων στον όροφο εκκένωσης όπου απολήγουν οι κατακόρυφες πυροπροστατευμένες οδεύσεις διαφυγής πρέπει να επαρκεί για τις κατακόρυφες παροχές που εξυπηρετούν. Εφόσον μετά την τελική έξοδο υπάρχουν σκαλοπάτια, πρέπει επίσης να κατασκευάζεται ράμπα επαρκούς πλάτους, ώστε να καθίσταται δυνατή η απομάκρυνση των ΑμεΑ.
Επικίνδυνοι χώροι δεν πρέπει να τοποθετούνται κάτω από ή σε άμεση γειτνίαση με τις τελικές εξόδους.
5.3.7. Θύρες οδεύσεων διαφυγής
5.3.7.1. Γενικά
Σε κάθε άνοιγμα πόρτας του πρώτου σταδίου της όδευσης διαφυγής (απροστάτευτη όδευση), πρέπει να υπάρχει τουλάχιστον ένα θυρόφυλλο με πλάτος ίσο ή μεγαλύτερο από 0.7 m. Κατ' εξαίρεση θύρες βοηθητικών χώρων (αποθηκών, χώρων υγιεινής, κ.λ.π.) επιτρέπεται να έχουν ελεύθερο πλάτος 0.6 m. Κανένα θυρόφυλλο, από το οποίο περνά όδευση διαφυγής, δεν επιτρέπεται να έχει πλάτος μεγαλύτερο από 1.2 m.
Το δάπεδο και από τις δύο πλευρές κάθε πόρτας πρέπει να είναι επίπεδο και να βρίσκεται στην ίδια στάθμη.
Κατ' εξαίρεση, όταν η πόρτα οδηγεί προς το ύπαιθρο ή προς εξωτερικό χώρο (εξώστη, ανοικτό ημιυπαίθριο χώρο, δώμα) ή προς την τελική έξοδο, επιτρέπεται η στάθμη του δαπέδου στην εξωτερική πλευρά της πόρτας να βρίσκεται μέχρι και 0.2 m χαμηλότερα σε σχέση με την εσωτερική στάθμη.
Οι απαιτήσεις πυραντοχής των θυρών των οδεύσεων διαφυγής καθορίζονται στον πίνακα του άρθρου 6 του παρόντος κεφαλαίου.
5.3.7.2. Κατεύθυνση περιστροφής θυρών
Κάθε πόρτα που χρησιμοποιείται ως έξοδος κινδύνου, πρέπει γενικά να ανοίγει προς την κατεύθυνση της διαφυγής παρέχοντας το πλήρες πλάτος του ανοίγματός της (Σχήμα 12).

Εξαιρούνται πόρτες που εξυπηρετούν χώρους που δεν είναι επικίνδυνοι ή υψηλού βαθμού κινδύνου και συνολικό πληθυσμό που δεν ξεπερνά τα 50 άτομα. Αυτές οι πόρτες επιτρέπεται να ανοίγουν και προς την αντίθετη κατεύθυνση της όδευσης διαφυγής ή να είναι συρόμενες.
Κάθε πόρτα που έχει άμεση πρόσβαση προς κλιμακοστάσιο, πρέπει κατά την περιστροφή της να μην φράσσει σκαλοπάτια ή πλατύσκαλα και να μην μειώνει το πλάτος της σκάλας ή του πλατύσκαλου, διασφαλίζοντας μία τουλάχιστον μονάδα πλάτους οδεύσεως διαφυγής (Σχήμα 13).

Οι αυτόματες μηχανοκίνητες θύρες με αισθητήρες κίνησης που παρεμβάλλονται στις οδεύσεις διαφυγής ή χρησιμοποιούνται ως έξοδοι κινδύνου, γίνονται αποδεκτές μόνο όταν παρέχουν το απαιτούμενο ελεύθερο πλάτος κατά το πλήρες άνοιγμά τους και σε περίπτωση διακοπής ρεύματος, παραμένουν ανοιχτές.
5.3.7.3. Εξοπλισμός θυρών
Κάθε πόρτα πρέπει να έχει κατάλληλο εξοπλισμό λειτουργίας, έτσι ώστε να ανοίγει αμέσως προς την πλευρά της όδευσης διαφυγής με προφανή και εύκολο τρόπο.
Κάθε πυράντοχη πόρτα που προβλέπεται να παραμένει κλειστή σε περίπτωση πυρκαγιάς (π.χ. πόρτα σε περίβλημα κλιμακοστασίου, πυροδιαμερίσματος, κ.λ.π.), πρέπει να είναι αυτοκλειόμενη.
Αν διαθέτει μηχανισμό συγκράτησης στην ανοικτή θέση, θα πρέπει αυτός να έχει τη δυνατότητα απενεργοποίησης με τους ακόλουθους τρόπους:
α. χειροκίνητα μέσω κατάλληλης επί τόπου εγκατεστημένης συσκευής (κομβίον)
β. από το κέντρο ελέγχου του κτιρίου
γ. σε περίπτωση διακοπής παροχής ηλεκτρικού ρεύματος
δ. σε περίπτωση ενεργοποίησης συστήματος πυρανίχνευσης
ε. σε περίπτωση ενεργοποίησης αυτόματου συστήματος πυρόσβεσης
Σύρτες ή παρόμοια μέσα ή συστήματα ασφαλίσεως (όπως χρήση κλειδιού, μαγνητικές κάρτες, πληκτρολόγια απασφάλισης) δεν γίνονται αποδεκτά.
5.3.7.4. Θύρες περιορισμού πορείας-ελέγχου
Οι αυτόματες μηχανοκίνητες θύρες με αισθητήρες κίνησης που χρησιμοποιούνται ως έξοδοι κινδύνου, γίνονται αποδεκτές μόνο όταν παρέχουν το απαιτούμενο πλάτος κατά το πλήρες άνοιγμά τους και σε περίπτωση διακοπής ρεύματος, παραμένουν ανοιχτές.
Οι θύρες ασφαλείας με ειδικούς μηχανισμούς χρονοκαθυστέρησης γίνονται αποδεκτές μόνο ως δεύτερες έξοδοι κινδύνου και πρέπει να απελευθερώνονται αυτόματα, σε κάθε περίπτωση διακοπής ρεύματος ή ενεργοποίησης του αυτόματου συστήματος πυρανίχνευσης ή και πυρόσβεσης εφόσον αυτό εγκαθίσταται, καθώς και χειροκίνητα με κομβίον απελευθέρωσης. Κατά τον υπολογισμό των μονάδων πλάτους της όδευσης διαφυγής, λαμβάνονται με το μισό του πλάτους τους.
Θύρες περιστρεφόμενες γύρω από κατακόρυφο κεντρικό άξονα, εφόσον αντιμετωπίζονται ως δεύτερες εναλλακτικές έξοδοι λαμβάνονται στο μισό του πλάτους τους, κατά τον υπολογισμό των μονάδων πλάτους της όδευσης διαφυγής.
Οι περιστροφικοί φραγμοί, ή διατάξεις ελέγχου εισερχομένων ατόμων (όπως σε γήπεδα) δεν γίνονται αποδεκτοί ως τμήματα οδεύσεων διαφυγής.
5.3.8. Κουπαστές
Οι σκάλες, τα πλατύσκαλα, οι εξώστες και οι ράμπες, που αποτελούν τμήματα οδεύσεων διαφυγής πρέπει να διαθέτουν κουπαστές. Οι κουπαστές πρέπει να είναι συνεχείς σε όλο το μήκος του κλάδου της σκάλας ή της ράμπας και να συνεχίζονται στα πλατύσκαλα.
Το ύψος των στηθαίων ή/ και των κιγκλιδωμάτων και επομένως και των κουπαστών που απαιτούνται θα πρέπει να είναι τουλάχιστον 1 m, μετρούμενο από το πάτημα των βαθμίδων της σκάλας.
Σε κάθε κλιμακοστάσιο που χρησιμοποιείται ως όδευση διαφυγής, όπου απαιτείται πλάτος σκάλας μεγαλύτερο από 1.8 m, πρέπει να τοποθετούνται ενδιάμεσες κουπαστές, έτσι ώστε το μέγιστο πλάτος κάθε τμήματος της σκάλας να είναι 1.8 m και το ελάχιστο 0.9 m.
5.4. Τεχνητός φωτισμός και φωτισμός ασφαλείας των οδεύσεων διαφυγής
5.4.1. Τεχνητός φωτισμός
Ο τεχνητός φωτισμός πρέπει να τροφοδοτείται από μόνιμες πηγές ενέργειας.
Απαγορεύεται η χρησιμοποίηση φωτιστικών σωμάτων, που λειτουργούν με συσσωρευτές και η χρήση φορητών στοιχείων για τον κανονικό φωτισμό των οδεύσεων διαφυγής.
Απαγορεύεται να χρησιμοποιούνται φωσφορίζοντα ή ανακλαστικά του φωτός στοιχεία ως υποκατάστατα των απαιτουμένων ηλεκτρικών φωτιστικών σωμάτων.
5.4.2. Φωτισμός ασφαλείας
Ο φωτισμός ασφαλείας σχεδιάζεται και εγκαθίσταται σύμφωνα με το πρότυπο ΕΛΟΤ ΕΝ 1838: Εφαρμογές Φωτισμού - Φωτιστικά Ασφαλείας, όπως κάθε φορά ισχύει. Επιβάλλεται η εγκατάσταση φωτισμού ασφαλείας των οδεύσεων διαφυγής και των εξόδων κινδύνου.
Τα φωτιστικά ασφαλείας πρέπει να παρέχουν το 50% της φωτεινότητας μέσα σε 5 sec και την πλήρη φωτεινότητα μέσα σε 60 sec, σύμφωνα με το ΕΛΟΤ ΕΝ 1838.
Τα φωτιστικά ασφαλείας και τα φωτιστικά σήμανσης κατεύθυνσης πρέπει να διατηρούν τον προβλεπόμενο φωτισμό για 1 τουλάχιστον ώρα (hr), σε περίπτωση διακοπής του κανονικού φωτισμού.
Στις οδεύσεις διαφυγής πλάτους μέχρι 2 m, η φωτεινότητα του δαπέδου κατά μήκος του κεντρικού άξονα της όδευσης διαφυγής δεν θα είναι μικρότερη από 1 lx και για την παράπλευρη της όδευσης διαφυγής ζώνη, πλάτους τουλάχιστον το ήμισυ του πλάτους της όδευσης διαφυγής, η φωτεινότητα του δαπέδου δεν θα είναι μικρότερη από 0.5 lx, σύμφωνα με το ΕΛΟΤ ΕΝ 1838, με την επιφύλαξη τυχόν αυστηρότερων απαιτήσεων καθοριζόμενων στις ειδικές ανά χρήση κτιρίων διατάξεις του κεφαλαίου Β του παρόντος κανονισμού.
Τα φωτιστικά ασφαλείας και τα φωτιστικά σήμανσης κατεύθυνσης εγκαθίστανται υποχρεωτικά, ανεξαρτήτως ύπαρξης εφεδρικής πηγής ενέργειας.
5.5. Επιγραφές και σήματα εξόδων διαφυγής
Τα σήματα (πινακίδες) διάσωσης ή βοήθειας, καθώς και τα σήματα (πινακίδες) που αφορούν τον πυροσβεστικό εξοπλισμό με τα εγγενή χαρακτηριστικά τους πρέπει να τοποθετούνται - εγκαθίστανται σύμφωνα με το πρότυπο ΕΛΟΤ ΕΝ ISO 7010: Γραφικά σύμβολα - Χρώματα και ενδείξεις ασφαλείας - Καταχωρημένες ενδείξεις ασφαλείας, όπως κάθε φορά ισχύει αφού ληφθούν υπόψη οι διατάξεις του προεδρικού διατάγματος 105/1995 (ΦΕΚ 67/Α/1995) Ελάχιστες προδιαγραφές για τη σήμανση ασφάλειας ή/ και υγείας στην εργασία σε συμμόρφωση με την Οδηγία 1992/58/EOK.
Επιβάλλεται η σήμανση ασφαλείας των οδεύσεων διαφυγής, των εξόδων κινδύνου και του πυροσβεστικού υλικού/εξοπλισμού.
5.6. Σχεδιαγράμματα διαφυγής
Τα σχεδιαγράμματα και σύμβολα διαφυγής με τις αντίστοιχες πινακίδες πρέπει να είναι σύμφωνα με το πρότυπο ISO 23601: Safety Identification - Escape and evacuation plan signs, όπως κάθε φορά ισχύει.
Γενικά επιβάλλεται η ανάρτηση διαγραμμάτων διαφυγής στα κτίρια που η κύρια χρήση τους αναπτύσσεται σε 3 ή περισσότερους ορόφους και τα οποία έχουν συνολικό θεωρητικό πληθυσμό πάνω από 200 άτομα, καθώς και όπου προβλέπεται από τις ειδικές ανά χρήση κτιρίων διατάξεις του Κεφαλαίου Β του παρόντος κανονισμού.
5.7. Κλιμακοστάσια και Ανελκυστήρες Πυροσβεστών
Σε κτίρια μεγάλου ύψους, όπως καθορίζεται στον Πίνακα 6, σε κτίρια με υπόγειους χώρους μεγάλης έκτασης ή μεγάλης διαφοράς στάθμης δαπέδου από το έδαφος, καθώς και όπου απαιτείται από την ειδική χρήση του κτιρίου, επιβάλλεται η κατασκευή ειδικών κλιμακοστάσιων ή ανελκυστήρων για την πρόσβαση των πυροσβεστών. (Πίνακας 6)
Τα κλιμακοστάσια του κτιρίου μπορούν να θεωρηθούν και ως κλιμακοστάσια πυροσβεστών, εφόσον πληρούν τις σχετικές προϋποθέσεις.
5.7.1. Κλιμακοστάσιο για την πρόσβαση των πυροσβεστών Πρόκειται για εσωτερικό ή εξωτερικό κλιμακοστάσιο μόνιμης κατασκευής και πυροπροστατευμένο, το οποίο κατασκευάζεται ειδικά για την πρόσβαση των πυροσβεστών. Επιβάλλεται γενικά σε:
α) κτίρια με ύψος μεγαλύτερο από 25 m και συνολικό πληθυσμό πάνω από 500 άτομα,
β) υπόγειους χώρους με βάθος μεγαλύτερο των 10 m.
γ) κτίρια με 2 ή περισσότερα υπόγεια και με εμβαδόν εκάστου υπογείου μεγαλύτερου των 900 m2, αλλά και όπου αλλού απαιτείται από τις Ειδικές Διατάξεις του παρόντος κανονισμού.
Το ελάχιστο πλάτος του κλιμακοστασίου πυροσβεστών ορίζεται ίσο με 0.9 m. Αυτό το ελάχιστο πλάτος των 0.9 m θα πρέπει να εξασφαλίζεται επιπλέον του συνολικού απαιτούμενου πλάτους κλιμακοστασίων για τη διαφυγή των ενοίκων. Το κλιμακοστάσιο πυροσβεστών μπορεί να χρησιμοποιηθεί και ως όδευση διαφυγής των ενοίκων.
5.7.2. Ανελκυστήρες πυροσβεστών
Σε κτίρια υψηλότερα των 28 m, καθώς και όπου από τις ειδικές διατάξεις απαιτείται, πρέπει να εγκαθίσταται ανελκυστήρας για χρήση από τους πυροσβέστες σε περίπτωση πυρκαγιάς. Ο ανελκυστήρας αυτός θα πρέπει να πληροί τις προδιαγραφές που περιλαμβάνονται στο πρότυπο ΕΝ 81 Μέρος 72-Ανελκυστήρες πυροσβεστών.
Σύμφωνα με το πρότυπο τα παρακάτω χαρακτηριστικά αποτελούν προϋποθέσεις, που πρέπει να εξασφαλίζονται από τον σχεδιασμό των κτιρίων προκειμένου ένας ανελκυστήρας να συμπεριληφθεί στην κατηγορία των ανελκυστήρων πυροσβεστών:
| • | Η είσοδος στον ανελκυστήρα πυροσβεστών σε κάθε όροφο πραγματοποιείται μέσω πυροπροστατευόμενου προθαλάμου. |
| • | Οι ανελκυστήρες πυροσβεστών δεν αποτελούν οδεύσεις διαφυγής, όπως τα κλιμακοστάσια. |
| • | Η παροχή ισχύος κίνησης και φωτισμού του ανελκυστήρα πρέπει να εξασφαλίζεται τόσο από κύρια όσο και από εφεδρική πηγή ενέργειας η οποία πρέπει να βρίσκεται εντός πυροπροστατευόμενου χώρου. |
| • | Ο ανελκυστήρας πυροσβεστών πρέπει να εξυπηρετεί όλους τους ορόφους του κτιρίου. |
| • | Στο αναφερθέν πρότυπο ΕΝ 81 καθορίζονται οι ελάχιστες διαστάσεις και το ελάχιστο ονομαστικό φορτίο του θαλάμου του ανελκυστήρα. |
Ο ανελκυστήρας πυροσβεστών μπορεί να χρησιμοποιείται ως ανελκυστήρας προσώπων σε κανονικές συνθήκες λειτουργίας του κτιρίου. Απαγορεύεται η χρήση του για τη μεταφορά απορριμμάτων και γενικά αντικειμένων, έτσι ώστε να αποκλεισθεί η πιθανότητα φραγμού της εισόδου του σε οποιονδήποτε όροφο.
Στον πίνακα 6 που ακολουθεί αποτυπώνονται επιπλέον των ανωτέρω γενικών απαιτήσεων κατασκευής κλιμακοστασίου και ανελκυστήρα Πυροσβεστών, που ισχύουν για όλες τις χρήσεις κτιρίων, πρόσθετες απαιτήσεις εγκατάστασής τους ανά κατηγορία χρήσης κτιρίου, για αποκλειστική χρήση από τους πυροσβέστες.

Πίνακας 6: Απαίτηση κατασκευής κλιμακοστασίου και ανελκυστήρα Πυροσβεστών
Γενικές απαιτήσεις
|
Κτίρια, ανεξαρτήτως χρήσης
|
Ανελκυστήρας πυροσβεστών
|
Κλιμακοστάσιο πυροσβεστών
|
Κτίρια ύψους άνω των 28 m
|
Κτίρια ύψους άνω των 25 m και πληθυσμού άνω των 500 ατόμων
|
Υπόγειοι χώροι με στάθμη δαπέδου >10 m υπό της στάθμης εδάφους
|
Κτίρια με 2 ή περισσότερα υπόγεια και εμβαδόν εκάστου υπογείου > 900 m2.
|
Επιπρόσθετες απαιτήσεις
|
Κατηγορία χρήσης
|
Ανελκυστήρας πυροσβεστών
|
Κλιμακοστάσιο πυροσβεστών
|
Προσωρινή διαμονή
|
>6 υπέργειους ορόφους
|
Γενικές απαιτήσεις
|
Εκπαίδευση *
|
Ύψος > 15 m.
|
Ύψος >15 m.
|
Γραφεία
|
Ύψος > 15 m και εμβαδόν ορόφου > 500 m2.
|
Γενικές απαιτήσεις
|
Εμπόριο
|
Ύψος>15 m και εμβαδόν ορόφου >500 m2.
|
Γενικές απαιτήσεις
|
Χώροι Συνάθροισης Κοινού *
|
Στάθμη δαπέδου άνω των 15 m.
|
Στάθμη δαπέδου άνω των 15 m.
|
Υγεία και κοινωνική πρόνοια **
|
Στάθμη δαπέδου άνω των 12 m.
|
Στάθμη δαπέδου άνω των 20 m.
|
Σημείωση: Τα αναφερόμενα ύψη μετρώνται από το επίπεδο του ορόφου εκκένωσης
* Οι απαιτήσεις ισχύουν διαζευκτικά
** Πραγματική απόσταση οριζόντιας απροστάτευτης όδευσης έως το κλιμακοστάσιο ή ανελκυστήρα μικρότερη από 45 m. Ελεύθερο πλάτος θαλάμου ανελκυστήρα τουλάχιστον 1.7 m και ελεύθερο βάθος τουλάχιστον 2.4 m.